

MOSS Immobilien GmbH
Herr Fabio Seeger
+49 ···
Nr. anzeigenPreise & Kosten
Provision für Käufer
Provisionsfrei
Provisionsfrei für Kaufende
Lage
In Horben, einem der wohl reizvollsten Orte am westlichen Rand des Schwarzwaldes, verschmelzen ländliche Idylle, gesunde Lebensweise und ausgezeichnete Infrastruktur zu einem einzigartigen Lebensraum. Eingebettet am Fuße des Schauinslands über Freiburg eröffnet sich hier ein Naturparadies für aktive Menschen: Wander- und...
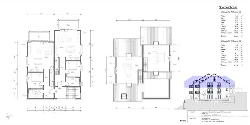
Die Wohnung
Kategorie
Maisonette
Wohnungslage
1. Geschoss
Bezug
Q3 2027
Wohnanlage
Energie & Heizung
Warum sehe ich diese Anzeige? – Du siehst diese Anzeige basierend auf Ihrer Navigation auf unserer Website und den Suchkriterien, die du verwendet hast.
Energieausweistyp
Bedarfsausweis
Gebäudetyp
Wohngebäude
Wesentliche Energieträger
Luftwärmepumpe
Weitere Energiedaten
Heizungsart
Luft-/Wasser-Wärmepumpe
Details
Objektbeschreibung
Dachgeschoss-Maisonette - Großzügiges Wohnen mit Weitblick bis nach Frankreich
Im idyllischen Ort Horben, umgeben vom beeindruckenden Panorama des südlichen Schwarzwaldes, entsteht dieses moderne Mehrfamilienhaus mit nur sechs Wohneinheiten - ein Neubauprojekt, das zeitlose Architektur, hochwertige Materialien und...
Ausstattung
Highlights & Ausstattung
KfW-40 Effizienzhaus mit QNG-Zertifizierung Kombination aus Degressiver und Sonder AfA mit bis zu 10% möglich.
Nachhaltige Luft/Wasser-Wärmepumpe mit zentraler Warmwasserbereitung
Photovoltaikanlage (ca. 11,25 kWp) zur Eigenstromerzeugung
Fußbodenheizung in allen Wohnräumen mit...
Preisinformation
2 Carportplätze
Weitere Informationen
Sonstiges
Provisionsfrei für Kaufende
MOSS Webseite - https://mossimmobilien.de
Expose Link für Portale - https://mossimmobilien.de/immobilie/4803757
Stichworte
Garage vorhanden, Carport vorhanden, Stellplatz vorhanden, Anzahl der Schlafzimmer: 2, Anzahl der Badezimmer: 1, Anzahl Balkone: 1...
Dokumente
Anbieter der Immobilie
MOSS Immobilien GmbH
Tullastraße 89, 79108 Freiburg im Breisgau

Online-ID: 2n6n75v
Referenznummer: MOSS-3043
Finde Angebote wie dieses
Hier geht es zu unserem Impressum, den Allgemeinen Geschäftsbedingungen, den Hinweisen zum Datenschutz und nutzungsbasierter Online-Werbung.