

Evelyn Scholz Immobilien | Dresden, Radebeul, Coswig, Moritzburg
Frau Evelyn Scholz
03 ···
Nr. anzeigenPreise & Kosten
Provision für Käufer
3,57 % des Kaufpreises inkl. gesetzlich gültiger MwSt.
Lage
Die zu verkaufende 1-Zimmerwohnung befindet sich am Rande eines Wohngebietes in ruhiger und begehrter Lage von Dresden-Bannewitz, in der Nähe der Eutschützer Mühle. Durch die sehr gute Infrastruktur sind öffentliche Verkehrsmittel in wenigen Minuten fußläufig erreichbar.
Die Dresdner Innenstadt ist in ca. 10 Minuten...
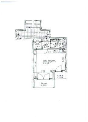
Die Wohnung
Derzeitige Nutzung
vermietet
Wohnanlage
Energie & Heizung
Warum sehe ich diese Anzeige? – Du siehst diese Anzeige basierend auf Ihrer Navigation auf unserer Website und den Suchkriterien, die du verwendet hast.
Energieausweistyp
Verbrauchsausweis
Gebäudetyp
Wohngebäude
Baujahr laut Energieausweis
1994
Wesentliche Energieträger
GAS
Gültigkeit
23.01.2019 bis 22.01.2029
Effizienzklasse
B
Endenergieverbrauch
74,00 kWh/(m²·a)
Weitere Energiedaten
Energieträger
Gas
Details
Objektbeschreibung
Zu verkaufen ist eine vermietete 1-Zimmerwohnung mit Balkon, Keller und PKW-Stellplatz in der Tiefgarage im 1. Obergeschoss eines 1994 erbauten Mehrfamilien-hauses. Die Wohnung ist ca. 43 m² groß und verfügt über ein Wohn-/ Schlafzimmer mit Küchenzeile und Austritt auf den Balkon, ein innenliegendes Badezimmer mit Dusche...
Ausstattung
Der Wohn-/ schlafraum sowie der Flur sind mit Laminatboden ausgestattet. Im innenliegenden Badezimmer mit Dusche, Waschbecken und WC sind Fliesen verlegt. Der Waschmaschinenanschluss befindet sich in einem separaten Waschmaschinenraum im Keller.
Zur Wohnung zugehörig ist ein Abstellraum im Keller sowie ein...
Preisinformation
1 Tiefgaragenstellplatz
Weitere Informationen
Stichworte
Tiefgarage vorhanden, Anzahl der Schlafzimmer: 1, Anzahl der Badezimmer: 1, Anzahl Balkone: 1, 1 Etagen
Online-ID: 2n6lm5j
Referenznummer: 26104
Finde Angebote wie dieses
Hier geht es zu unserem Impressum, den Allgemeinen Geschäftsbedingungen, den Hinweisen zum Datenschutz und nutzungsbasierter Online-Werbung.