

Störmer Immobilien
Herr/Frau Andreas Störmer
036 ···
Nr. anzeigenPreise & Kosten
Provision für Käufer
5,95% inkl. gesetzl. MwSt.
Lage
Die Wohnung befindet sich in zentraler Lage von Schönbrunn nahe der Hauptstraße. Einrichtungen
des täglichen Bedarfs sowie das Ortszentrum sind in wenigen Minuten erreichbar. In unmittelbarer
Nähe befinden sich zudem ein Kindergarten und das Schwimmbad. Das Grundstück des
Mehrfamilienhauses grenzt an waldnahe...
Die Wohnung
Wohnungslage
Souterrain
Bezug
sofort
Wohnanlage
Energie & Heizung
Warum sehe ich diese Anzeige? – Du siehst diese Anzeige basierend auf Ihrer Navigation auf unserer Website und den Suchkriterien, die du verwendet hast.
Weitere Energiedaten
Energieträger
Öl
Heizungsart
Fußbodenheizung, Zentralheizung
Details
Objektbeschreibung
Mitten im Herzen von Schönbrunn befindet sich dieses attraktive, freistehende Zweifamilienhaus in
ruhiger Lage. Die hervorragende Infrastruktur ermöglicht kurze Wege zu allem, was man im Alltag
braucht: Ärzte, Grundschule und Kindergarten, Supermarkt, Tankstelle oder auch das Terrassenbad
sind in wenigen Minuten zu...
Ausstattung
Das zeichnet diese Immobilie aus:
- ruhige Lage in Zentrumsnähe
- großes Wohnzimmer mit Kaminofen
- helle Küche mit EBK und Einbaugeräten
- zusätzliches Zimmer als Arbeits- oder Kinderzimmer nutzbar
WICHTIGES AUF EINEN BLICK
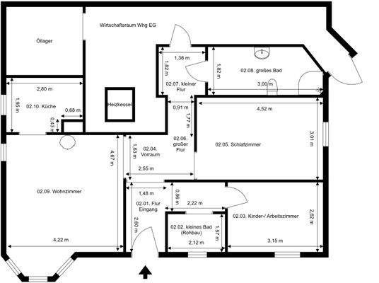
Wohnfläche: ca. 70,00 m²
Baujahr: ca. 2000
Etagen: 1
Zimmer...
Weitere Informationen
Sonstiges
Info: Anzahl Etagen: 2
Diese helle und freundliche Eigentumswohnung im Erdgeschoss überzeugt durch ihre flexible Raumaufteilung und vielfältigen Nutzungsmöglichkeiten. Das dritte Zimmer
eignet sich ideal als Arbeits-, Kinder- oder Gästezimmer und macht die Wohnung sowohl für Singles und Paare als auch für...
Anbieter der Immobilie

Störmer Immobilien
Dorfstr. 20, 98673 Eisfeld OT Hirschendorf

Online-ID: 2n6jt5e
Referenznummer: ASI 1477
Finde Angebote wie dieses
Hier geht es zu unserem Impressum, den Allgemeinen Geschäftsbedingungen, den Hinweisen zum Datenschutz und nutzungsbasierter Online-Werbung.