

Johannes Mandel Neubauplanung als freier Handelsvertreter für die LivingHaus Fertighaus GmbH
Herr Johannes Mandel
015 ···
Nr. anzeigenPreise & Kosten
Provision für Käufer
Bitte beachte, das Angebot kann bei Vertragsabschluss die Zahlung einer Provision beinhalten. Weitere Informationen erhältst Du vom Anbieter.
Lage
Die Lage in Rheda-Wiedenbrück ist ein wahrer Vorteil für dich und deine Familie. In der Umgebung findest du zahlreiche Bildungseinrichtungen, darunter Schulen und Kindergärten, die für Familien ideal sind. Der Kindergarten "St. Elisabeth" und die Grundschule "Hermann-Löns" genießen besonders gute Bewertungen für ihre...
Das Haus
Kategorie
Doppelhaushälfte
Energie & Heizung
Warum sehe ich diese Anzeige? – Du siehst diese Anzeige basierend auf Ihrer Navigation auf unserer Website und den Suchkriterien, die du verwendet hast.
Weitere Energiedaten
Haustyp
KfW 55
Details
Objektbeschreibung
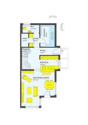
Dieses wunderschöne Doppelhaus in Rheda-Wiedenbrück wird ganz nach deinen Wünschen und Vorstellungen projektiert. Mit einer großzügigen Wohnfläche von 125 m² und einer Grundstücksgröße von 545 m² bietet es dir ausreichend Platz, um deine Ideen zu verwirklichen. Die klassische Architektur mit Satteldach und der eindrucksvollen...
Ausstattung
Dein zukünftiges Zuhause kommt mit einer Vielzahl hochwertiger Ausstattungsmerkmale, die für einen hohen Komfort sorgen. Du erhältst moderne Böden, edle Türen und stilvolle Sanitäranlagen, die optimal aufeinander abgestimmt sind und direkt fix und fertig geliefert werden. Die innovative I-KON-Lösung sorgt dafür, dass dein...
Weitere Informationen
Sonstiges
Der Grundstückspreis ist im Anzeigenpreis bereits enthalten.
Das Grundstück erwerben Sie direkt vom Eigentümer über einen Makler.
Ein Träumchen an Grundstück. :-)
Heimkommen - ankommen - herunterkommen - wohlfühlen
Vereinbaren Sie gleich Ihren persönlichen Beratungstermin und sichern Sie sich...
Anbieter der Immobilie
Johannes Mandel Neubauplanung als freier Handelsvertreter für die LivingHaus Fertighaus GmbH
Urbachstraße 26, 35099 Bottendorf

Online-ID: 2n6dt5y
Referenznummer: 30777-1320
Finde Angebote wie dieses
Hier geht es zu unserem Impressum, den Allgemeinen Geschäftsbedingungen, den Hinweisen zum Datenschutz und nutzungsbasierter Online-Werbung.