
ohne-makler.net - Immobilien selbst vermarkten
Privat vom Eigentümer
Kontaktiere den Anbieter schriftlich, es ist keine Telefonnummer hinterlegt.
Preise & Kosten
Provision für Käufer
provisionsfrei
Lage
Haseldorf liegt in Schleswig-Holstein im Kreis Pinneberg an der Elbe. Es ist eines der ältesten Dörfer Schleswig-Holsteins und ist bekannt für seine landschaftliche Schönheit mit dem Naturschutzgebiet "Haseldorfer Marsch".
Viele Erledigungen können in wenigen Minuten zu Fuß oder mit dem Fahrrad bewältigt...
Das Haus
Kategorie
Einfamilienhaus
Baujahr
2001
Bezug
nach Absprache
Energie & Heizung
Warum sehe ich diese Anzeige? – Du siehst diese Anzeige basierend auf Ihrer Navigation auf unserer Website und den Suchkriterien, die du verwendet hast.
Energieausweistyp
Verbrauchsausweis
Gebäudetyp
Wohngebäude
Effizienzklasse
A
Endenergieverbrauch
30,00 kWh/(m²·a)
Weitere Energiedaten
Energieträger
Gas
Heizungsart
Fußbodenheizung, offener Kamin
Details
Objektbeschreibung
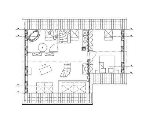
Dieses freistehende Einfamilienhaus in Haseldorf ist ein Beispiel für gesundes, ökologisches Wohnen. Es wurde Wert auf natürliche Materialien, nachhaltige Baustoffe und ein angenehmes Raumklima gelegt. Gemütlichkeit und ein moderner, mit der Natur im Einklang ausgerichteter Lebensstil wurden hier vereint.
Ideal für Paare...
Ausstattung
Terrasse, Garten, Vollbad, Duschbad, Einbauküche, Gäste-WC, Kamin, Teppichboden, Fliesen, Sonstiges (s. Text)
Bemerkungen:
Kurzfassung:
- lichtdurchfluteter offener Wohn-Essbereich
- großzügige 3m Deckenhöhe im Erdgeschoss
- repräsentative Trennwand aus sichtbarem Stampflehm
- offene hochwertige...
Preisinformation
2 Stellplätze
1 Garagenstellplatz
Weitere Informationen
Sonstiges
Heizungsart: Fußbodenheizung
Energieträger: Gas
Schlagworte für Informationen im Internet
moderner Lehmbau in der Praxis
ökologisch bauen
Wikipedia: Haseldorf
NDR: Haseldorfer Marsch - Naturidyll an der Elbe
Amt-Geest-und-Marsch-Südholstein: Gemeinde Haseldorf
Haben Sie...
Dokumente
Anbieter der Immobilie
ohne-makler.net - Immobilien selbst vermarkten
Humboldtstr. 25 A, 21509 Glinde
Privat vom Eigentümer
Dein Ansprechpartner
Kontaktiere den Anbieter schriftlich, es ist keine Telefonnummer hinterlegt.
Online-ID: 2n6bb5r
Referenznummer: 428674
Finde Angebote wie dieses
Hier geht es zu unserem Impressum, den Allgemeinen Geschäftsbedingungen, den Hinweisen zum Datenschutz und nutzungsbasierter Online-Werbung.