
ohne-makler.net - Immobilien selbst vermarkten
Privat von Fritz Peckedrath
Kontaktiere den Anbieter schriftlich, es ist keine Telefonnummer hinterlegt.
Preise & Kosten
nicht in Warmmiete enthalten
Kaution
3.584,00
Warum sehe ich diese Anzeige? – Du siehst diese Anzeige basierend auf Ihrer Navigation auf unserer Website und den Suchkriterien, die du verwendet hast.
Lage
Hiddesen bietet eine gute Infrastruktur mit zahlreichen Einkaufsmöglichkeiten, Ärzten und Schulen. Die Anbindung an den öffentlichen Nahverkehr ist gut ausgebaut, und die umliegenden Grünflächen laden zu Freizeitaktivitäten ein. Detmold verbindet städtisches Leben mit naturnahen Erholungsmöglichkeiten.
Infrastruktur (im...
Das Haus
Kategorie
Doppelhaushälfte
Baujahr
2023
Bezug
01.06.2026
Energie & Heizung
Warum sehe ich diese Anzeige? – Du siehst diese Anzeige basierend auf Ihrer Navigation auf unserer Website und den Suchkriterien, die du verwendet hast.
Energieausweistyp
Bedarfsausweis
Gebäudetyp
Wohngebäude
Effizienzklasse
A
Endenergiebedarf
45,00 kWh/(m²·a)
Weitere Energiedaten
Energieträger
Fernwärme
Heizungsart
Fußbodenheizung
Details
Objektbeschreibung
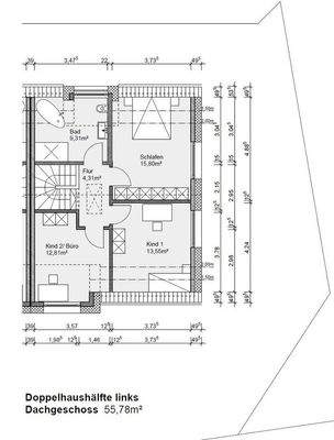
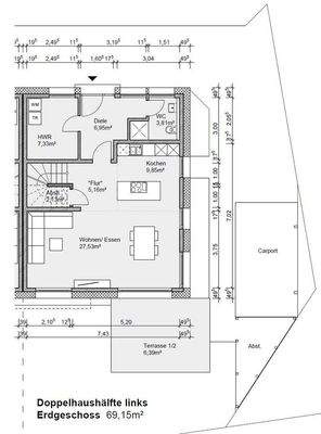
Die DHH mit 128 qm Wohnfläche wurde 2023 in ruhiger Südlage zentrumsnah auf einem 295 qm großen Grundstück als KfW- Energiesparhaus mit eingewachsenem Garten Weitblick errichtet.
Sie bietet 4 Zimmer mit modernem Grundriss, d. h., der Küchenbereich ist ins Wohn- Esszimmer integriert.
Vom Wohn- Esszimmer (42 qm) mit...
Ausstattung
Terrasse, Garten, Vollbad, Duschbad, Fliesen
Preisinformation
1 Carportplatz
1 Stellplatz
Nettokaltmiete: 1.792,00 EUR
Weitere Informationen
Sonstiges
Heizungsart: Fußbodenheizung
Energieträger: Fernwärme
Makleranfragen nicht erwünscht. Nach § 7 UWG sind unaufgeforderte Kontaktaufnahmen durch Makler ohne ausdrückliche Einwilligung des Empfängers verboten!
ohne-makler (OM) ist weder Anbieter noch Vermittler der Immobilie. OM betreibt eine...
Anbieter der Immobilie
ohne-makler.net - Immobilien selbst vermarkten
Humboldtstr. 25 A, 21509 Glinde
Privat von Fritz Peckedrath
Dein Ansprechpartner
Kontaktiere den Anbieter schriftlich, es ist keine Telefonnummer hinterlegt.
Online-ID: 2n6b25j
Referenznummer: 428927
Finde Angebote wie dieses
Hier geht es zu unserem Impressum, den Allgemeinen Geschäftsbedingungen, den Hinweisen zum Datenschutz und nutzungsbasierter Online-Werbung.