

H&H FinanzMakler GmbH
Frau Conny Kaspar
036 ···
Nr. anzeigenPreise & Kosten
Provision für Käufer
Die Käufercourtage beträgt 3,57 % inkl. gesetzlicher MwSt. auf den vereinbarten Kaufpreis. Grunderwerbsteuer, Notar- und Gerichtskosten trägt der Käufer.
Lage
Die Kreisstadt Gotha ist die fünftgrößte Stadt Thüringens und liegt strategisch günstig zwischen der Landeshauptstadt Erfurt und Eisenach. Mit rund 46.000 Einwohnern sowie einer ausgezeichneten infrastrukturellen Anbindung an die Autobahn A4 und die Bundesstraßen B7 und B247 bietet Gotha attraktive Rahmenbedingungen für eine...
Das Haus
Kategorie
Einfamilienhaus
Baujahr
2025
Bezug
nach Absprache
Energie & Heizung
Warum sehe ich diese Anzeige? – Du siehst diese Anzeige basierend auf Ihrer Navigation auf unserer Website und den Suchkriterien, die du verwendet hast.
Weitere Energiedaten
Heizungsart
Fußbodenheizung, Luft-/Wasser-Wärmepumpe
Details
Objektbeschreibung
Diese außergewöhnliche, im Jahre 2025 errichtete Immobilie vereint sowohl exklusiven Wohnkomfort wie auch eine zeitlose Formensprache und fügt sich harmonisch in das gewachsene Stadtbild ein.
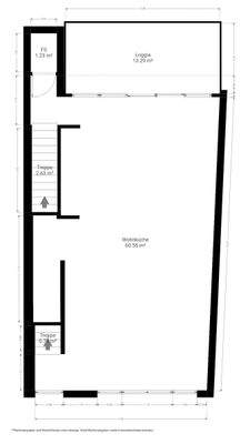
Auf rund 175 m² Wohnfläche bietet Ihr neues Zuhause eine durchdachte Raumstruktur über mehrere Ebenen. Bereits im Erdgeschoss...
Ausstattung
Technische Daten & Ausstattung:
- Raumhöhe: ca. 2,50 m bis 5,60 m (Galerie)
- massive Bauweise
- 3 Südbalkone mit jeweils rund ca. 13 m² Fläche
- Dachterrasse mit ca. 10 m² Fläche - Stadt- & Schlossblick inklusive
- Einbauküche von Schüller mit Küppersbusch-Geräten & Berbel-Induktion
-...
Preisinformation
1 Garagenstellplatz
Weitere Informationen
Stichworte
Nutzfläche: 82,00 m², Anzahl der Schlafzimmer: 3, Anzahl der Badezimmer: 1, Anzahl der separaten WCs: 1, Anzahl Balkone: 3, Anzahl Terrassen: 1, 4 Etagen
Anbieter der Immobilie

Online-ID: 2n68v5b
Referenznummer: CK-525-HH
Finde Angebote wie dieses
Hier geht es zu unserem Impressum, den Allgemeinen Geschäftsbedingungen, den Hinweisen zum Datenschutz und nutzungsbasierter Online-Werbung.