
Home Hunts
Herr Francois De Vial
+33 ···
Nr. anzeigenPreise & Kosten
Provision für Käufer
Bitte beachte, das Angebot kann bei Vertragsabschluss die Zahlung einer Provision beinhalten. Weitere Informationen erhältst Du vom Anbieter.
Die Wohnung
Bezug
ab sofort
Details
Objektbeschreibung
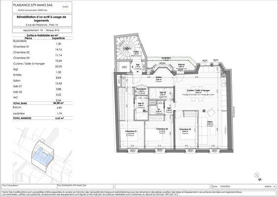
Paris 14th - Elegant 4-Room Apartment Near Pernety
Located on the 3rd floor with elevator of a beautifully renovated, high-standard historic building, just steps from Pernety Metro and the vibrant local shops, this 94.55 m2 apartment perfectly blends the charm of the old with modern comforts.
The layout includes...
Anbieter der Immobilie
Home Hunts
55 Rue saint Ferreol, 13001 MARSEILLE
Online-ID: 2n67u5m
Referenznummer: HH-16082649/HH-16082649/HH-16082649
Finde Angebote wie dieses
Hier geht es zu unserem Impressum, den Allgemeinen Geschäftsbedingungen, den Hinweisen zum Datenschutz und nutzungsbasierter Online-Werbung.