

Bougie GmbH
Herr Bernd Bougie
024 ···
Nr. anzeigenPreise & Kosten
Provision für Käufer
3,57% inkl. MwSt.
Verdient und fällig mit Beurkundung des notariellen Kaufvertrages. Der Immobilienmakler hat einen provisionspflichtigen Maklervertrag mit dem Verkäufer abgeschlossen.
Lage
Die Immobilie befindet sich in zentraler Lage von Heinsberg und bietet dir die perfekte Kombination aus urbanem Leben und angenehmer Umgebung. Das Stadtzentrum erreichst du bequem zu Fuß - ideal für den Alltag ohne lange Wege. In einem Umkreis von nur etwa 500 Metern findest du alles, was du zum täglichen Leben brauchst...
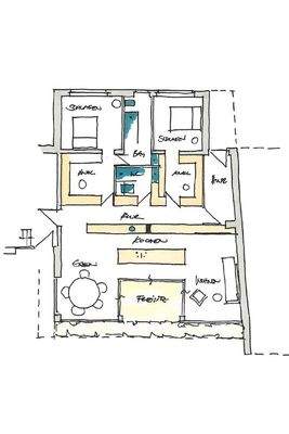
Die Wohnung
Wohnungslage
Erdgeschoss
Wohnanlage
Energie & Heizung
Warum sehe ich diese Anzeige? – Du siehst diese Anzeige basierend auf Ihrer Navigation auf unserer Website und den Suchkriterien, die du verwendet hast.
Energieausweistyp
Bedarfsausweis
Gebäudetyp
Wohngebäude
Gültigkeit
bis 21.03.2036
Effizienzklasse
D
Endenergiebedarf
127,00 kWh/(m²·a)
Weitere Energiedaten
Energieträger
Gas
Heizungsart
Zentralheizung
Details
Objektbeschreibung
Diese ehemalige Apothekenfläche bietet dir eine seltene Gelegenheit, deine Wohnvision Wirklichkeit werden zu lassen. Aus der zentral gelegenen Gewerbefläche kann eine moderne, großzügige Erdgeschosswohnung mit ganz besonderem Charakter entstehen.
Große Fensterflächen, ein ebenerdiger Zugang und flexible Raumstrukturen...
Weitere Informationen
Sonstiges
Baujahr: 1979
Heizungsart: Zentralheizung
Befeuerung/Energieträger: Gas
Energieausweistyp: Bedarfsausweis
Energiekennwert: 127 kWh/(m²*a)
Energieeffizienzklasse: D
Bitte habe Verständnis, dass wir Exposés nur bei vollständiger Angabe deiner Kontaktdaten verschicken.
Mit deiner Anforderung...
Anbieter der Immobilie

Online-ID: 2n6695z
Referenznummer: 25 0671
Finde Angebote wie dieses
Hier geht es zu unserem Impressum, den Allgemeinen Geschäftsbedingungen, den Hinweisen zum Datenschutz und nutzungsbasierter Online-Werbung.