

Lan Immobilien
Herr Manuel Lan
+49 ···
Nr. anzeigenPreise & Kosten
Kaution
4.350,00EUR
Provision für Käufer
14.851,20EUR
3,57 % Käuferprovision inkl. MwSt., verdient und fällig mit Beurkundung des notariellen Kaufvertrages. Der Immobilienmakler hat einen provisionspflichtigen Maklervertrag mit dem Verkäufer in gleicher Höhe abgeschlossen.
Lage
Die Immobilie liegt im beliebten Berliner Ortsteil Tegel (Bezirk Reinickendorf). Die Umgebung ist ruhig und familienfreundlich, gleichzeitig gut an den öffentlichen Nahverkehr sowie die A111 angebunden. Einkaufsmöglichkeiten, Schulen und Kitas befinden sich in der Nähe, ebenso das Einkaufszentrum Hallen am...
Die Wohnung
Wohnungslage
3. Geschoss
Bezug
ab Sofort
Derzeitige Nutzung
frei
Wohnanlage
Energie & Heizung
Warum sehe ich diese Anzeige? – Du siehst diese Anzeige basierend auf Ihrer Navigation auf unserer Website und den Suchkriterien, die du verwendet hast.
Energieausweistyp
Bedarfsausweis
Gebäudetyp
Wohngebäude
Baujahr laut Energieausweis
1996
Wesentliche Energieträger
Gasetagenheizung
Gültigkeit
24.04.2008 bis 24.04.2018
Effizienzklasse
C
Endenergiebedarf
80,00 kWh/(m²·a)
Weitere Energiedaten
Heizungsart
Etagenheizung
Details
Objektbeschreibung
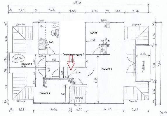
Das Wohnhaus ist ein gepflegter Bau aus den 1930er Jahren und besteht aus einem Vorderhaus. Die angebotene Wohneinheit befindet sich im 3. Obergeschoss und besticht durch ihre helle und freundliche Atmosphäre.
Ausstattung
Die Wohnung überzeugt durch ihren durchdachten Grundriss mit drei separat begehbaren Zimmern. Die halb offen gestaltete Küche fügt sich harmonisch in den Wohnbereich ein und schafft eine angenehme, kommunikative Atmosphäre. Ein großzügiger Flur bildet das zentrale Herzstück der Wohnung, von dem aus alle Räume bequem...
Weitere Informationen
Sonstiges
**Die Wohnung wird im Alleinauftrag verkauft**
Für weitere Fragen stehen wir Ihnen jederzeit zur Verfügung!
Ein ausführliches Exposé zum Objekt erhalten Sie auf schriftliche Anfrage.
Besichtigungen sind kurzfristig möglich.
Wir bitten Sie das Kontaktformular vollständig...
Anbieter der Immobilie
Lan Immobilien
Marburgerstr. 14, 10789 Berlin

Online-ID: 2n64s5v
Referenznummer: 1842
Finde Angebote wie dieses
Hier geht es zu unserem Impressum, den Allgemeinen Geschäftsbedingungen, den Hinweisen zum Datenschutz und nutzungsbasierter Online-Werbung.