
McMakler GmbH
Ihr McMakler Team
080 ···
Nr. anzeigenPreise & Kosten
Provision für Käufer
Die Provision i.H.v. 3,57 % inkl. MwSt. ist mit Kaufvertragsbeurkundung fällig, sofern der Verkaufspreis über 83.000,00 € liegt.
Liegt der Verkaufspreis dagegen bei/unter 83. Weitere Informationen siehe Provisionshinweis.
Lage
Lage: Attraktive Lage in Türkenfeld mit besten Bedingungen für Eigennutzer und Kapitalanleger
Bildung und Betreuung: Weniger Stress am Morgen dank Kindergarten und Schule in fußläufiger Entfernung
Nahversorgung: Bequem zu Fuß in max. 5 Minuten kaufen: Supermarkt, Postfiliale und Bankfiliale
Der Ammersee ist in ca. 15...
Das Haus
Kategorie
Mehrfamilienhaus
Baujahr
1970
Bezug
nach Absprache
Energie & Heizung
Warum sehe ich diese Anzeige? – Du siehst diese Anzeige basierend auf Ihrer Navigation auf unserer Website und den Suchkriterien, die du verwendet hast.
Energieausweistyp
Bedarfsausweis
Gebäudetyp
Wohngebäude
Baujahr laut Energieausweis
1970
Wesentliche Energieträger
Solar
Effizienzklasse
A
Endenergiebedarf
31,60 kWh/(m²·a)
Weitere Energiedaten
Energieträger
Solar
Heizungsart
Zentralheizung
Details
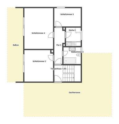
Objektbeschreibung
Objektnr: 1070218
Dieses hochwertig kern- und energetisch sanierte Mehrfamilienhaus mit drei abgeschlossenen Wohneinheiten präsentiert sich in exzellentem Zustand und vereint Energieeffizienz, moderne Technik und vielseitige Nutzungsmöglichkeiten auf höchstem Niveau. Ideal für Kapitalanleger, Mehrgenerationenwohnen...
Ausstattung
+ In familienfreundlicher Umgebung von Türkenfeld
+ Der uneinsehbare Garten auf ca. 883 m² Grund lädt zum Verweilen ein - eine Terrasse und 3 Balkone bereichern das Erlebnis
+ Die Immobilie präsentiert sich in einem gepflegten Zustand - die letzte Renovierung erfolgte 2021
+ Hochwertige Ausstattung inkl. einer...
Weitere Informationen
Provisionshinweis
Die Provision i.H.v. 3,57 % inkl. MwSt. ist mit Kaufvertragsbeurkundung fällig, sofern der Verkaufspreis über 83.000,00 € liegt.
Liegt der Verkaufspreis dagegen bei/unter 83.000,00 €, ist die fest vereinbarte Mindestprovision i.H.v. mind. 5.950,00 € inkl. MwSt. mit Kaufvertragsbeurkundung fällig...
Anbieter der Immobilie
McMakler GmbH
Am Postbahnhof 17, 10243 Berlin
Online-ID: 2n64f5v
Referenznummer: 69665122ab
Finde Angebote wie dieses
Hier geht es zu unserem Impressum, den Allgemeinen Geschäftsbedingungen, den Hinweisen zum Datenschutz und nutzungsbasierter Online-Werbung.