
Immobilien
Frau Erika Würger
+49 ···
Nr. anzeigenPreise & Kosten
Provision für Käufer
3,57% vom Kaufpreis
Lage
Das Dreifamilienhaus befindet sich in absoluter ruhiger Wohnlage am Ortsrand in Empfingen - Ortsteil Wiesenstetten. Der Ort verfügt über rund 4.000 Einwohner und liegt auf einer Hochebene des Neckartals zwischen dem Schwarzwald und der Schwäbischen Alb. Zahlreiche Wanderwege, eine malerische Landschaft sowie der beliebte...
Das Haus
Kategorie
Mehrfamilienhaus
Geschosse
3 Geschosse
Baujahr
1972
Bezug
kurzfristig
Energie & Heizung
Warum sehe ich diese Anzeige? – Du siehst diese Anzeige basierend auf Ihrer Navigation auf unserer Website und den Suchkriterien, die du verwendet hast.
Energieausweistyp
Bedarfsausweis
Gebäudetyp
Wohngebäude
Baujahr laut Energieausweis
1972
Wesentliche Energieträger
Öl
Gültigkeit
10.07.2024 bis 10.07.2034
Effizienzklasse
C
Endenergiebedarf
97,00 kWh/(m²·a)
Weitere Energiedaten
Energieträger
Öl
Heizungsart
Ofen, Zentralheizung
Details
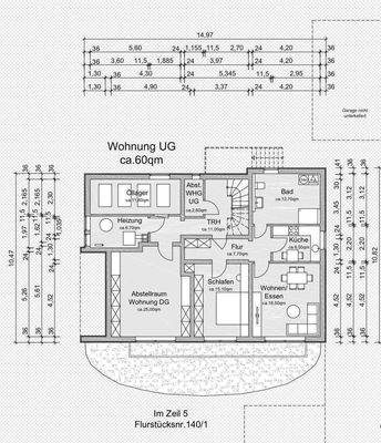
Objektbeschreibung
Modernisiertes 3- Fam-Haus im idyllischer Ortsrandlage in Empfingen-Wiesenstetten.
Das Objekt wurde vom jetzigen Eigentümer mit großem Aufwand, stil- und geschmackvoll modernisiert/nahe komplett saniert.
Alt und Neu in Einklang gebracht.
Es wurden folgende Sachen neu gemacht:
-komplettes Dach neu...
Weitere Informationen
Maklerprovision
Vorstehende Angaben erstrecken sich auf Mitteilungen der Verkäuferseite, für deren Richtigkeit keine Gewähr geleistet wird. Angebot freibleibend und unverbindlich- Zwischenverkauf vorbehalten-. Die durch den Käufer bei Abschluß eines Kaufvertrages an uns zu entrichtende Nachweisprovision beträgt incl...
Anbieter der Immobilie
Immobilien
Weinbergstr. 15, 78262 Gailingen

Online-ID: 2n64e5a
Finde Angebote wie dieses
Hier geht es zu unserem Impressum, den Allgemeinen Geschäftsbedingungen, den Hinweisen zum Datenschutz und nutzungsbasierter Online-Werbung.