
BEST PLACE Immobilien GmbH & Co. KG
Ihr Best Place Vertriebsteam
004 ···
Nr. anzeigenDieses Angebot ist Teil des Neubauprojekts
Inselquartier Eiswerder
Preise & Kosten
Provision für Käufer
3,57%
Lage
Das Inselquartier Eiswerder liegt auf der Südspitze der Havel-Insel Eiswerder, die über die Kleine und die Große Eiswerderbrücke mit dem Festland verbunden ist. Nur ein paar Meter sind es zum Uferweg, der um die Insel herumführt. Und direkt nebenan lädt der Eiswerderpark zum Spazieren, Joggen oder Gassi gehen mit dem Hund am...
Die Wohnung
Wohnungslage
1. Geschoss
Wohnanlage
Das Neubauprojekt
Energie & Heizung
Warum sehe ich diese Anzeige? – Du siehst diese Anzeige basierend auf Ihrer Navigation auf unserer Website und den Suchkriterien, die du verwendet hast.
Energieausweistyp
Bedarfsausweis
Gebäudetyp
Wohngebäude
Baujahr laut Energieausweis
2023
Wesentliche Energieträger
GAS
Gültigkeit
bis 22.11.2033
Effizienzklasse
B
Endenergiebedarf
70,00 kWh/(m²·a)
Weitere Energiedaten
Energieträger
Gas
Heizungsart
Fußbodenheizung
Details
Objektbeschreibung
Diese sonnige 1-Zimmer-Wohnung liegt in einem modernen Neubau-Quartier direkt an der Havel in zweiter Reihe zum Wasser. Ob als Kapitalanlage oder als Ferienwohnung für Wassersport-Fans - das elegante Studio-Apartment ist perfekt geeignet. Die Wohnung ist fertiggestellt und sofort frei für den Erstbezug.
Bodentiefe...
Ausstattung
.Bezugsfertige Neubauwohnung
.Wasserblick
.Aufzug
.Bodentiefe Fenster
.Echtholz-Parkett
.Markenbad
.Rainshower Dusche
.Italienische Feinsteinzeugfliesen
.Keller
.Tiefgaragen-Stellplatz (zusätzlich zu erwerben)
Weitere Informationen
Sonstiges
Unser Showroom in der Eiswerderstraße 10B, 13585 Berlin ist für Sie am Samstag und Sonntag von 11:00 - 14:00 Uhr geöffnet. Wir freuen uns auf Ihren Besuch!
Stichworte
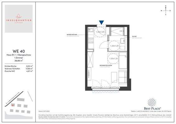
Tiefgarage vorhanden, vermietbare Fläche: 28,88 m², Bundesland: Berlin, 5 Etagen, Wohnungsnr.: WE 040
Anbieter der Immobilie
Online-ID: 2n63p5g
Referenznummer: EIS-WE40
Finde Angebote wie dieses
Hier geht es zu unserem Impressum, den Allgemeinen Geschäftsbedingungen, den Hinweisen zum Datenschutz und nutzungsbasierter Online-Werbung.