
HVDD Immobilien GmbH
Herr Frank Hoppe
040 ···
Nr. anzeigenPreise & Kosten
Provision für Käufer
Die Maklercourtage in Höhe von 3,57 % des Kaufpreises inklusive 19% Mwst ist bei notariellem Vertragsabschluss vom Käufer an den Makler verdient und fällig.
Lage
Diese schöne Eigentumswohnung befindet sich unweit des Hamburger Hauptbahnhofs, des Hansaplatzes und des Steindamms. In direktem Umfeld gibt es kleine Läden, bekannte Restaurants und Kultureinrichtungen, wie das Deutsche Schauspielhaus oder das Museum für Kunst und Gewerbe. Alle U-und S-Bahnlinien sind fußläufig im...
Die Wohnung
Wohnungslage
3. Geschoss
Bezug
nach Absprache
Wohnanlage
Energie & Heizung
Warum sehe ich diese Anzeige? – Du siehst diese Anzeige basierend auf Ihrer Navigation auf unserer Website und den Suchkriterien, die du verwendet hast.
Energieausweistyp
Bedarfsausweis
Gebäudetyp
Wohngebäude
Baujahr laut Energieausweis
1900
Wesentliche Energieträger
Erdgas
Gültigkeit
seit 20.05.2008
Endenergiebedarf
159,80 kWh/(m²·a)
Weitere Energiedaten
Heizungsart
Etagenheizung
Details
Objektbeschreibung
Objektbeschreibung
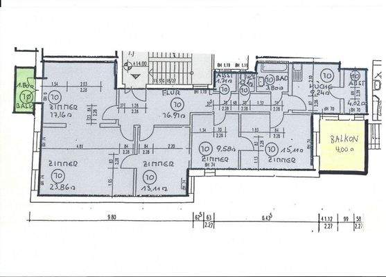
Sie betreten die Wohnung im 3. OG durch eine doppelflügelige Eingangstür und kommen in den großen, repräsentativen Flur, von dem alle Zimmer abgehen.
Zur Vorderseite gibt es zwei sehr repräsentative Wohnräume mit einer Doppeltür verbunden sind. Eines dieser Zimmer hat einen Sonnenbalkon zur...
Weitere Informationen
Besichtigungstermine
nach telefonischer Absprache
Sonstiges
Irrtum und Zwischenverkauf vorbehalten
Bitte bewerben Sie sich schriftlich mit Ihrem Namen, Anschrift und Telefonnummer.
Vielen Dank im Voraus.
Stichworte
Sonstiges: frei werdend
Anbieter der Immobilie
HVDD Immobilien GmbH
Spitalerstr. 30, 20095 Hamburg
Online-ID: 2n6395w
Finde Angebote wie dieses
Hier geht es zu unserem Impressum, den Allgemeinen Geschäftsbedingungen, den Hinweisen zum Datenschutz und nutzungsbasierter Online-Werbung.