
Crozilla.com
Re/max Complete Valentinus d.o.o.
+38 ···
Nr. anzeigenPreise & Kosten
Provision für Käufer
Bitte beachte, das Angebot kann bei Vertragsabschluss die Zahlung einer Provision beinhalten. Weitere Informationen erhältst Du vom Anbieter.
Die Immobilie
Zu diesem Angebot wurden vom Anbieter keine weiteren Daten hinterlegt. Für weitere Informationen bitte den Anbieter kontaktieren.
Nach Informationen fragenDetails
Objektbeschreibung
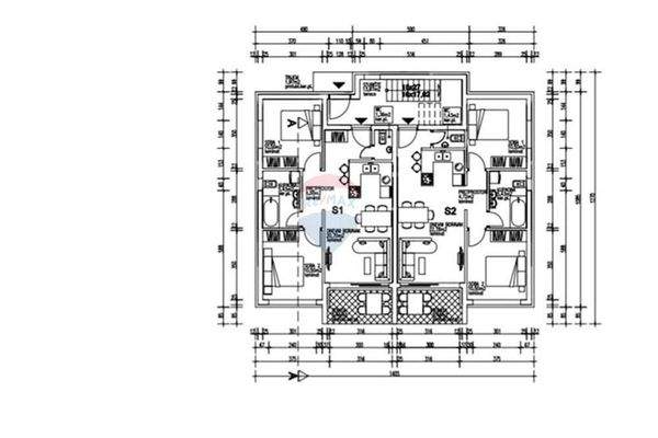
Zum Verkauf steht eine moderne, im Bau befindliche 2-Zimmer-Wohnung in exzellenter Lage in Turanj, Gemeinde Sveti Filip i Jakov.
Die Wohnung (Nr. S1) befindet sich im Erdgeschoss eines kleinen Wohnhauses mit insgesamt drei Wohneinheiten.
Die Wohnfläche beträgt 55,37 m, zuzüglich einer 5,46 m großen...
Weitere Informationen
Stichworte
Anzahl der Schlafzimmer: 2, Anzahl der Badezimmer: 1, 1 Etagen
Anbieter der Immobilie
Crozilla.com
Nova cesta 60, 10000 ZAGREB
Online-ID: 2n5zy5u
Referenznummer: 19398290_0
Finde Angebote wie dieses
Hier geht es zu unserem Impressum, den Allgemeinen Geschäftsbedingungen, den Hinweisen zum Datenschutz und nutzungsbasierter Online-Werbung.