
Immaxi Immobilien
Herr Thomas Hoffmann
034 ···
Nr. anzeigenPreise & Kosten
Kaution
3 Kaltmieten
Warum sehe ich diese Anzeige? – Du siehst diese Anzeige basierend auf Ihrer Navigation auf unserer Website und den Suchkriterien, die du verwendet hast.
Lage
Die Anhalter Straße befindet sich in einer ruhigen, gewachsenen Wohnlage von Leipzig. Das Umfeld ist überwiegend durch Wohnbebauung geprägt und bietet ein angenehmes, urbanes Wohnklima. Einrichtungen des täglichen Bedarfs wie Einkaufsmöglichkeiten, Apotheken und gastronomische Angebote sind im näheren Umfeld...
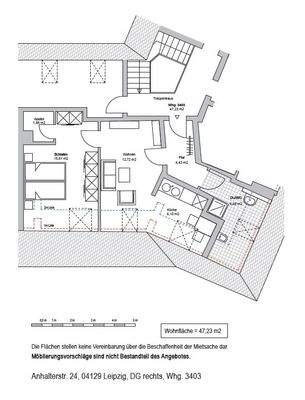
Die Wohnung
Wohnungslage
4. Geschoss (Dachgeschoss)
Bezug
sofort
Wohnanlage
Energie & Heizung
Warum sehe ich diese Anzeige? – Du siehst diese Anzeige basierend auf Ihrer Navigation auf unserer Website und den Suchkriterien, die du verwendet hast.
Energieausweistyp
Verbrauchsausweis
Gebäudetyp
Wohngebäude
Baujahr laut Energieausweis
1936
Wesentliche Energieträger
KWK_FOSSIL
Gültigkeit
bis 23.04.2028
Effizienzklasse
C
Endenergieverbrauch
80,10 kWh/(m²·a)
Weitere Energiedaten
Heizungsart
Zentralheizung
Details
Objektbeschreibung
Erstbezug nach Sanierung: 2 Raum Wohnung im Dachgeschoss:
Die schicke Wohnung überzeugt durch einen klaren, zeitgemäßen Grundriss mit offenem Wohn-, Ess- und Küchenbereich. Ein moderner Vinylboden sorgt in allen Wohnräumen für ein einheitliches und pflegeleichtes Erscheinungsbild.
Das Tageslichtbad ist mit...
Ausstattung
Frei ab sofort: 2 Raum Wohnung, Dachgeschoss, Erstbezug nach Sanierung, Tageslichtbad mit Dusche, moderner Fußboden in Holzoptik, offener Wohn- Essbereich, Abstellkammer im Schlafzimmer, Keller, Hausmeisterservice und vieles mehr.
Weitere Informationen
Sonstiges
Immaxi Immobilien - Die Immobilienmakler in Leipzig !
Haben wir Ihr Interesse geweckt? Vereinbaren Sie einen Besichtigungstermin!
TELEFON 0341 2122212
Unter dieser Nummer erreichen Sie unser kompetentes Maklerteam. Wir versuchen einen Termin nach Ihren Wünschen zu realisieren.
Unser...
Anbieter der Immobilie
Online-ID: 2n5v85e
Referenznummer: 19635
Finde Angebote wie dieses
Hier geht es zu unserem Impressum, den Allgemeinen Geschäftsbedingungen, den Hinweisen zum Datenschutz und nutzungsbasierter Online-Werbung.