

VR Immobilien & Service GmbH
Herr Tobias Gillner
015 ···
Nr. anzeigenPreise & Kosten
Provision für Käufer
ohne zusätzliche Käuferprovision
Lage
Schweinfurt überzeugt durch seine zentrale Lage im Herzen Deutschlands und bietet ideale Voraussetzungen für Eigentum mit Zukunft. Die Stadt liegt direkt an den Autobahnen A70 und A71, die schnelle Verbindungen in alle Richtungen ermöglichen - ob nach Würzburg, Nürnberg, Erfurt
oder in die Rhön. Ergänzt wird dies durch...
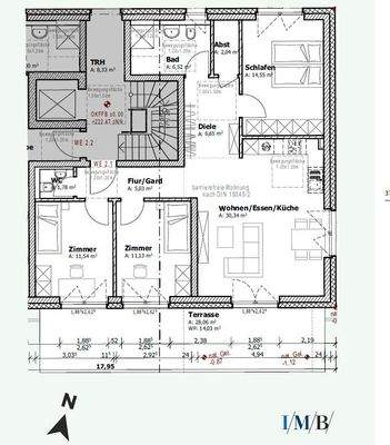
Die Wohnung
Wohnungslage
Erdgeschoss
Wohnanlage
Energie & Heizung
Warum sehe ich diese Anzeige? – Du siehst diese Anzeige basierend auf Ihrer Navigation auf unserer Website und den Suchkriterien, die du verwendet hast.
Weitere Energiedaten
Heizungsart
Fußbodenheizung
Details
Objektbeschreibung
In bevorzugter Lage am Kiliansberg in Schweinfurt entstehen moderne Eigentumswohnungen, die durch klare Architektur und hochwertige Ausstattung überzeugen. Helle, lichtdurchflutete Grundrisse und großzügige Raumhöhen schaffen ein offenes, einladendes
Wohngefühl. Jede Wohnung ist barrierearm gestaltet und bietet somit...
Ausstattung
. Moderne Architektur mit klaren Linien
. Ausführung größtenteils durch eigene Handwerksfirmen (Tochterfirmen)
. Helle, lichtdurchflutete Grundrisse
. Große Raumhöhen
. Alle Wohnungen barrierearm erreichbar
. Große Balkone, Terrassen, Dachterrassen und private Gärten
. Fenster mit hochwertiger Verglasung für...
Weitere Informationen
Stichworte
Tiefgarage vorhanden, Stellplatz vorhanden, Anzahl der Schlafzimmer: 3, Anzahl der Badezimmer: 1, Balkon-Terrassen-Fläche: 28,06 m²
Anbieter der Immobilie

VR Immobilien & Service GmbH
Raiffeisenplatz 1-3, 97616 Bad Neustadt

Online-ID: 2n5rl5p
Referenznummer: 1259
Finde Angebote wie dieses
Weitere Immobilien
Hier geht es zu unserem Impressum, den Allgemeinen Geschäftsbedingungen, den Hinweisen zum Datenschutz und nutzungsbasierter Online-Werbung.