

Leonhard Immobilien e. K.
Herr Harald Leonhard
+49 ···
Nr. anzeigenPreise & Kosten
Provision für Käufer
6,25 % inkl. MwSt.
Lage
Mitten in der Hamburger Altstadt, nur wenige Meter vom Nikolaifleet entfernt, liegt die Reimerstwiete 11 - ein Ort, an dem die Geschichte der Hansestadt spürbar bleibt und modernes Arbeiten seinen Platz findet.
Das Umfeld wird geprägt von historischen Kontorhäusern, Banken, Kanzleien und kleinen Geschäften. Zahlreiche...
Büro-/Praxisfläche
Kategorie
Bürofläche
Baujahr
1986
Bezug
nach Vereinbarung
Derzeitige Nutzung
vermietet
Energie & Heizung
Warum sehe ich diese Anzeige? – Du siehst diese Anzeige basierend auf Ihrer Navigation auf unserer Website und den Suchkriterien, die du verwendet hast.
Wärme
Strom
Energieausweistyp
Bedarfsausweis
Gebäudetyp
Nicht-Wohngebäude
Baujahr laut Energieausweis
1986
Wesentliche Energieträger
GAS
Gültigkeit
bis 12.07.2026
Endenergiebedarf (Wärme)
107,90 kWh/(m²·a)
Endenergiebedarf (Strom)
29,80 kWh/(m²·a)
Details
Objektbeschreibung
Jetzt schon digital besichtigen - 360°-Onlinebesichtigung verfügbar!
Zwischen Nikolaifleet und Rödingsmarkt, im historischen Herzen der Hamburger Altstadt, präsentiert sich die Reimerstwiete 11 als hanseatisches Kontorhaus mit klassischer Ausstrahlung und moderner Funktionalität.
Zwei im Grundbuch getrennt...
Ausstattung
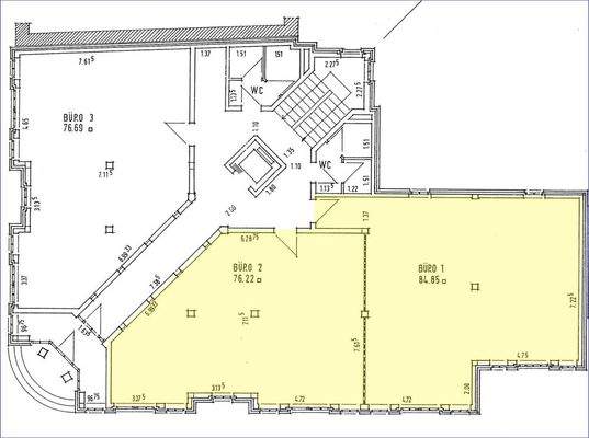
Gesamtfläche: ca. 161 m² (Büro 1 ? 85 m² / Büro 2 ? 76 m²)
Baujahr: 1986
Einheiten: zwei im Grundbuch getrennt eingetragene Büros, aktuell zusammengelegt
Vermietung: langfristig bis 31.03.2029 mit Staffelsteigerungen
Zustand: gepflegt, klare Struktur, funktionale Ausstattung
Architektur...
Weitere Informationen
Stichworte
vermietbare Fläche: 161,00 m²
Anbieter der Immobilie

Online-ID: 2n5qm5u
Referenznummer: 24304
Finde Angebote wie dieses
Hier geht es zu unserem Impressum, den Allgemeinen Geschäftsbedingungen, den Hinweisen zum Datenschutz und nutzungsbasierter Online-Werbung.