

B & C International Consulting FlexCo
Herr Frank Thömmes
+49 ···
Nr. anzeigenPreise & Kosten
Provision für Käufer
3,57% (inkl. MwSt.) vom Käufer vom Kaufpreis zu zahlen
Lage
Dieses wunderschöne Haus befindet sich in Neumagen-Dhron, dem ältesten Weinort Deutschlands.
Die Moselpromenade, moseltypische Restaurants und gemütliche Weinlokale sind nur wenige Schritte entfernt. Der historische Ortskern mit seinen idyllischen Gassen und liebevoll restaurierten Fassaden verleiht dem Ort eine...
Das Haus
Kategorie
Einfamilienhaus
Baujahr
1930
Bezug
01.06.2026
Energie & Heizung
Warum sehe ich diese Anzeige? – Du siehst diese Anzeige basierend auf Ihrer Navigation auf unserer Website und den Suchkriterien, die du verwendet hast.
Energieausweistyp
Bedarfsausweis
Gebäudetyp
Wohngebäude
Baujahr laut Energieausweis
1930
Wesentliche Energieträger
ÖL
Gültigkeit
16.10.2023 bis 03.11.2034
Endenergiebedarf
419,80 kWh/(m²·a)
Weitere Energiedaten
Energieträger
Öl
Heizungsart
offener Kamin, Zentralheizung
Details
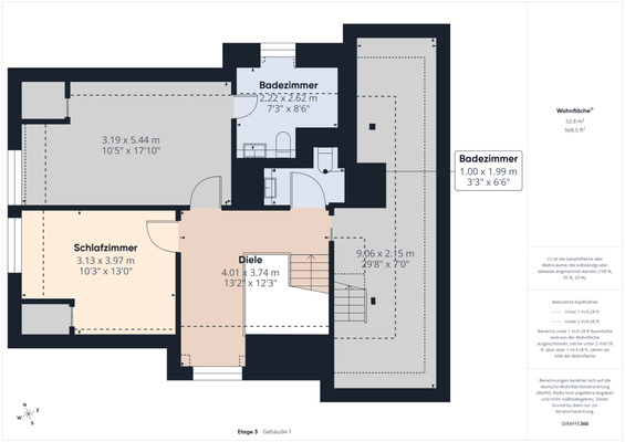
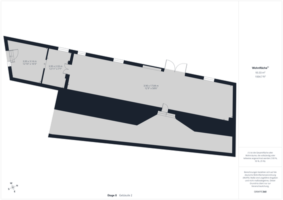
Objektbeschreibung
Dieses stilvolle Haus aus dem Baujahr 1930 vereint historische Architektur mit großzügigen Raumverhältnissen und einer außergewöhnlichen Aussicht auf Mosel und Weinberge.
Auf einer Wohnfläche von ca. 250 m² und einem 730 m² großen Grundstück bietet die Immobilie viel Platz für Familie, Arbeiten von zu Hause oder...
Ausstattung
Besonderheiten der Immobilie
- Traumhafter Mosel- und Weinbergblick
- Historische Architektur mit hochwertigen Originalmaterialien
- Großzügige Raumaufteilung mit vielen Nutzungsmöglichkeiten
- Ruhige Lage im historischen Weinort
- Großes Grundstück mit Garten und Terrasse
- Zusätzliche Ausbau- und...
Weitere Informationen
Besichtigungstermine nach Absprache unter folgender Nummer
015906434110
Haftungsausschluss
Die von der Firma B & C International Consulting FlexCo gemachten Angaben, hinsichtlich Größe und Beschaffenheit des Objektes beruhen auf Informationen des Verkäufers. Eine Haftung für die Richtigkeit der...
Dokumente
Anbieter der Immobilie
B & C International Consulting FlexCo
Marc-Aurel-Straße, 1010 Wien

Online-ID: 2n5pg5v
Finde Angebote wie dieses
Hier geht es zu unserem Impressum, den Allgemeinen Geschäftsbedingungen, den Hinweisen zum Datenschutz und nutzungsbasierter Online-Werbung.