

DAS IMMOBILIENHAUS Fuhrmann
Herr Malte Hübner
036 ···
Nr. anzeigenPreise & Kosten
Provision für Käufer
3,57 % inkl. 19 % MwSt.
Lage
Wohnlage: 98527 Suhl, Hochparterre
umgeben von Ein- und Mehrfamilienhäusern
Infrastruktur:
Friseure, Ärzte, Kindergarten, Schulen, Busanbindung städtischer Nahverkehr, diverse gastronomische Einrichtungen, Einkaufsmöglichkeiten im
näheren Umfeld
Die Wohnung
Wohnungslage
Erdgeschoss
Wohnanlage
Energie & Heizung
Warum sehe ich diese Anzeige? – Du siehst diese Anzeige basierend auf Ihrer Navigation auf unserer Website und den Suchkriterien, die du verwendet hast.
Energieausweistyp
Verbrauchsausweis
Gebäudetyp
Wohngebäude
Baujahr laut Energieausweis
1958
Wesentliche Energieträger
Gas
Endenergieverbrauch
147,00 kWh/(m²·a)
Weitere Energiedaten
Energieträger
Gas
Heizungsart
Etagenheizung
Details
Objektbeschreibung
Art: Mehrfamilienhaus mit 4 Wohnungen und 4 Carports, zwei Vollgeschosse, nicht ausgebautes Dachgeschoss, voll unterkellert
Baujahr: 1958
Konstruktionsart: Massivbau
Fundament: Streifenfundament
Außenwände: Mauerwerk, Ziegelstein
Sockel = Granitstein
Fassade: gedämmt ca. 6 cm =...
Ausstattung
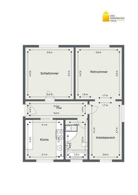
Art: 2-Zimmerwohnung
Wohnfläche: ca. 66,00 m²
Aufteilung: Flur, Küche, Schlafzimmer, Wohnzimmer, Bad
Innenausstattung:
Bodenbeläge: Flur = Laminat
Küche = PVC-Belag
Bad = Fliesen
Schlafzimmer, Wohnzimmer = Teppich
Wandbekleidung: Flur, Schlafzimmer, Wohnzimmer, Küche =...
Weitere Informationen
Größe: ca. 1.624 m²
Gestalt und Form: unregelmäßig, terrassenartig
Erschließung: Strom, Wasser, Gas, Kanalanschluss, Kabelanschluss, Telefon/ Internet
Miteigentumsanteil Wohnung: 233/ 1.000stel
Anbieter der Immobilie

Online-ID: 2n5p55a
Referenznummer: 647
Finde Angebote wie dieses
Hier geht es zu unserem Impressum, den Allgemeinen Geschäftsbedingungen, den Hinweisen zum Datenschutz und nutzungsbasierter Online-Werbung.