

Riesemann Immobilien GmbH
Frau Lydia Riesemann
081 ···
Nr. anzeigenPreise & Kosten
Provision für Käufer
keine Außenprovision, da Bauträgermodell zzgl. MwSt.
Lage
Kaltental ist ein Markt im Schwäbischen Landkreis Ostallgäu. Er besteht aus 3 Gemeinden Aufkirch, Blonhofen und Frankenhofen und hat ca. 1700 Einwohner.
Die Gemeinde liegt am Rand der Allgäuer Landschaft. Der Name "Kaltental" wurde frei gewählt, weil die drei Gemeindeteile im "kalten Tal" liegen, was wiederum nichts...
Das Haus
Kategorie
Einfamilienhaus
Baujahr
2026
Bezug
nach Absprache
Energie & Heizung
Warum sehe ich diese Anzeige? – Du siehst diese Anzeige basierend auf Ihrer Navigation auf unserer Website und den Suchkriterien, die du verwendet hast.
Energieausweis: für diesen Gebäudetyp nicht notwendig
Weitere Energiedaten
Heizungsart
Fußbodenheizung, Luft-/Wasser-Wärmepumpe
Details
Objektbeschreibung
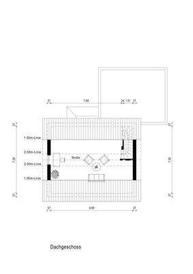
Dieses traumhafte, in massiver Bauweise gebaute EFH mit ca. 163 qm Wohnfläche auf einem Grundstück mit 346 qm, wird in ruhiger Lage in Blonhofen erbaut.
Es besticht durch ein offenes, großzügiges Flächenangebot in lichtdurchfluteten Räumen. Die bodentiefen Fensterelemente im Wohnbereich sorgen von morgens bis abends...
Ausstattung
Dezentrale Lüftungsanlage
Hochwertige Ausstattung z. B. Vinyl-Bodenbelag
Kunststofffenster mit 3-fach Wärmedämmverglasung,
innen weiß, außen anthrazit foliert
Kunststoff-Rollläden, elektrisch bedienbar
Luft- Wasserwärmepumpe
Fußbodenheizung
Hochwertige Sanitärausstattung
1 Doppelgarage
Preisinformation
2 Garagenstellplätze
Weitere Informationen
Sonstiges
Wir sind allein beauftragte Makler und freuen uns auf Sie und Ihre Kontaktaufnahme .
Vereinbaren Sie einen persönlichen Besichtigungstermin für dieses attraktive Objekt.
Bei schriftlicher Kontaktaufnahme geben Sie bitte Ihre Telefonnummer an. Wir rufen Sie gerne zurück.
Alle Angaben sind ohne Gewähr...
Anbieter der Immobilie

Online-ID: 2n5nc5m
Referenznummer: 1147
Finde Angebote wie dieses
Hier geht es zu unserem Impressum, den Allgemeinen Geschäftsbedingungen, den Hinweisen zum Datenschutz und nutzungsbasierter Online-Werbung.