
Neubauer Immobilien GmbH
Herr Marcel Schnupper
004 ···
Nr. anzeigenPreise & Kosten
Provision für Käufer
2,38 %
Lage
Der Stadtteil Eutingen-Mäuerach liegt im Osten von Pforzheim und verbindet ruhiges Wohnen mit einer sehr guten Alltagsinfrastruktur. Geprägt von gewachsenen Wohngebieten, viel Grün und einer angenehmen Nachbarschaft bietet der Stadtteil eine hohe Lebensqualität für Familien, Paare und Berufspendler.
Eutingen verfügt über...
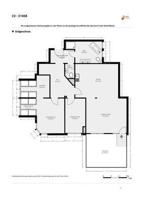
Die Wohnung
Bezug
nach Absprache
Wohnanlage
Energie & Heizung
Warum sehe ich diese Anzeige? – Du siehst diese Anzeige basierend auf Ihrer Navigation auf unserer Website und den Suchkriterien, die du verwendet hast.
Energieausweistyp
Verbrauchsausweis
Gebäudetyp
Wohngebäude
Baujahr laut Energieausweis
2006
Wesentliche Energieträger
GAS
Gültigkeit
bis 08.07.2034
Effizienzklasse
D
Endenergieverbrauch
127,00 kWh/(m²·a)
Weitere Energiedaten
Energieträger
Gas
Heizungsart
Fußbodenheizung, Zentralheizung
Details
Objektbeschreibung
Diese attraktive Eigentumswohnung in Pforzheim-Eutingen vereint großzügiges Wohnen mit einem durchdachten Grundriss und einem angenehmen Wohnambiente. Das 2021 komplett sanierte Objekt bietet mit ca. 117 m² Wohnfläche ideale Voraussetzungen für Paare, Familien oder anspruchsvolle Eigennutzer oder Kapitalanleger. Die...
Ausstattung
- Beleuchtung: alle Räume mit dimmbaren Deckenspots
- alle Fenster: 3 - fach verglast, Kunststoff und integrierte Insektenrollos, innen weiß, außen braun
- elektrische Rollläden
- Gegensprechanlage mit Video
- hochwertige Einbauküche mit Kochinsel
- Doppelgarage mit elektrischem Rolltor bietet Platz für zwei...
Weitere Informationen
Sonstiges
2,38 % Käufer-Provision inkl. MwSt., verdient und fällig mit Beurkundung des notariellen Kaufvertrages. Der Immobilienmakler hat einen provisionspflichtigen Maklervertrag mit dem Verkäufer in gleicher Höhe abgeschlossen.
Stichworte
Nutzfläche: 83,00 m², Anzahl der Schlafzimmer: 2, Anzahl der Badezimmer...
Anbieter der Immobilie
Online-ID: 2n5ms5s
Referenznummer: NI26833
Finde Angebote wie dieses
Hier geht es zu unserem Impressum, den Allgemeinen Geschäftsbedingungen, den Hinweisen zum Datenschutz und nutzungsbasierter Online-Werbung.