

IMAXX Gesellschaft für Immobilien-Marketing mbH
Herr Burak Köksal
064 ···
Nr. anzeigenPreise & Kosten
zzgl. Nebenkosten
Kaution
5.850 €
Provision für Mieter
1,5 Monatskaltmieten zzgl. gesetzl. MwSt.
Warum sehe ich diese Anzeige? – Du siehst diese Anzeige basierend auf Ihrer Navigation auf unserer Website und den Suchkriterien, die du verwendet hast.
Lage
Im Herzen des Landkreises Marburg-Biedenkopf befindet sich die Universitätsstadt Marburg mit ihren Ortsteilen Bauerbach, Bortshausen, Cappel, Cyriaxweimar, Dagobertshausen, Dilschhausen, Elnhausen, Ginseldorf, Gisselberg, Haddamshausen, Hermershausen, Marbach, Marburg, Michelbach, Moischt, Ockershausen, Richtsberg, Ronhausen...
Büro-/Praxisfläche
Kategorie
Bürofläche
Bezug
sofort
Energie & Heizung
Warum sehe ich diese Anzeige? – Du siehst diese Anzeige basierend auf Ihrer Navigation auf unserer Website und den Suchkriterien, die du verwendet hast.
Energieausweis: für diesen Gebäudetyp nicht notwendig
Details
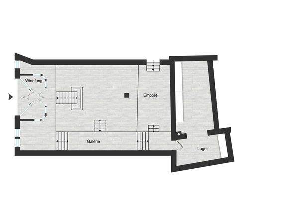
Objektbeschreibung
Inmitten der historischen Oberstadt von Marburg befindet sich dieses außergewöhnliche Objekt im Untergeschoss eines denkmalgeschützten Gebäudes.
Das beeindruckende Raumkonzept mit offenem Grundriss, sichtbaren Sandstein und Ziegelwänden, dunklen Holzdielen und modernen Stahlelementen verleiht dem Objekt eine besondere...
Weitere Informationen
Stichworte
Gesamtfläche: 168,21 m², Bundesland: Hessen, Distanz zum Flughafen: 71.92, Distanz zum Hauptbahnhof: 2.17, Distanz zum Bus: 0.04
Anbieter der Immobilie

Online-ID: 2n5me59
Referenznummer: 48705
Finde Angebote wie dieses
Hier geht es zu unserem Impressum, den Allgemeinen Geschäftsbedingungen, den Hinweisen zum Datenschutz und nutzungsbasierter Online-Werbung.