

Makler Puttkammer & Team
Herr Maik Puttkammer
0 4 ···
Nr. anzeigenPreise & Kosten
Provision für Käufer
Die Verkäufer- und Käufercourtagen beträgt jeweils 2,5 % inkl. der gesetzlichen MwSt.
Siehe auch Sonstige Vereinbarungen.
Lage
Die Wohnung befindet sich in angenehmer und gewachsener Wohnlage im beliebten Stadtteil Altkloster. Die Hermann-Löns-Straße ist eine ruhige Anliegerstraße mit gepflegter Nachbarschaft und überwiegend wohnwirtschaftlicher Bebauung. Die Buxtehuder Innenstadt mit ihrer charmanten Altstadt, vielfältigen Einkaufsmöglichkeiten...
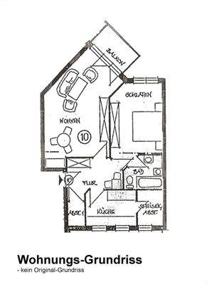
Die Wohnung
Wohnungslage
1. Geschoss
Bezug
sofort
Derzeitige Nutzung
frei
Wohnanlage
Energie & Heizung
Warum sehe ich diese Anzeige? – Du siehst diese Anzeige basierend auf Ihrer Navigation auf unserer Website und den Suchkriterien, die du verwendet hast.
Energieausweistyp
Verbrauchsausweis
Gebäudetyp
Wohngebäude
Baujahr laut Energieausweis
1997
Wesentliche Energieträger
Gas
Effizienzklasse
D
Endenergieverbrauch
105,20 kWh/(m²·a)
Weitere Energiedaten
Energieträger
Gas
Heizungsart
Zentralheizung
Details
Objektbeschreibung
Sehr gepflegte 2-Zimmer-Wohnung im 1. Obergeschoss einer einladenden Wohnanlage.
Flächenaufteilung:
- Ca. 74 m² – Wohnfläche
- Ca. 26 m² – Kellerraum (Nutzfläche)
Wohngeld:
Ca. EUR 315,00/mtl. laut Wirtschaftsplan 2025 (davon sind rund € 215,00 umlagefähig auf einen möglichen...
Weitere Informationen
Die Gesamtcourtage in Höhe von 5,0 % inkl. der gesetzlichen Mehrwertsteuer auf den Kaufpreis ist mit dem Zustandekommen des Kaufvertrages (notarieller Vertragsabschluss) verdient und fällig. Käufer und Verkäufer schulden die Courtage jeweils in gleicher Höhe (2,5 %) aufgrund separater Vereinbarungen in Textform. Die...
Dokumente
Anbieter der Immobilie
Makler Puttkammer & Team
Rudolf-Diesel-Straße 1, 21629 Neu Wulmstorf

Online-ID: 2n5ll5k
Referenznummer: 12745
Finde Angebote wie dieses
Hier geht es zu unserem Impressum, den Allgemeinen Geschäftsbedingungen, den Hinweisen zum Datenschutz und nutzungsbasierter Online-Werbung.