

Werner Doll Immobilien
Frau Julia Denis
015 ···
Nr. anzeigenPreise & Kosten
Provision für Käufer
3,57 % inkl. MwSt.
Lage
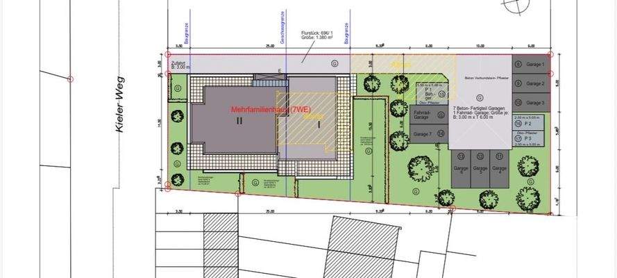
Das Neubauprojekt befindet sich im Kieler Weg 38 in 27751 Delmenhorst,
im beliebten Stadtteil Stickgras. Die Lage zeichnet sich durch eine ruhige
Wohnumgebung mit guter Infrastruktur aus.
Exposé 7 ETW Kieler Weg 38 in …
Alle wichtigen Einrichtungen des täglichen Bedarfs befinden sich in
unmittelbarer...
Die Wohnung
Wohnungslage
2. Geschoss
Wohnanlage
Energie & Heizung
Warum sehe ich diese Anzeige? – Du siehst diese Anzeige basierend auf Ihrer Navigation auf unserer Website und den Suchkriterien, die du verwendet hast.
Weitere Energiedaten
Haustyp
KfW 40
Heizungsart
Fußbodenheizung, Luft-/Wasser-Wärmepumpe, Zentralheizung
Details
Objektbeschreibung
Im attraktiven Stadtteil Stickgras in Delmenhorst entsteht ein modernes
Mehrfamilienhaus mit 7 hochwertigen Eigentumswohnungen. Die
Wohnungen bieten 2 bis 4 Zimmer und Wohnflächen von ca. 60 m² bis ca.
126 m² und überzeugen durch eine moderne Architektur, hochwertige
Ausstattung sowie eine energieeffiziente...
Ausstattung
Die Wohnungen werden mit einer hochwertigen und modernen
Ausstattung realisiert:
-Energieeffizienter Neubau nach KFN??40 Standard
-Luft-Wasser-Wärmepumpe
-Photovoltaikanlage
-Fußbodenheizung in allen Wohnräumen
-Dreifach verglaste Kunststofffenster
-Elektrische Rollläden
-Bodengleiche...
Weitere Informationen
Sonstiges
Bauzeit:
Geplante Bauzeit: ca. 18 Monate
Der Baubeginn erfolgt nach dem Verkauf von 50 %
der Wohnungen
Bei Interesse oder Fragen stehen wir Ihnen gerne zur Verfügung
Energiequelle:
Solarenergie
Dokumente
Anbieter der Immobilie
Werner Doll Immobilien
August-Wilhelm-Kühnholz-Str. 5, 26135 Oldenburg

Online-ID: 2n5kv5t
Finde Angebote wie dieses
Hier geht es zu unserem Impressum, den Allgemeinen Geschäftsbedingungen, den Hinweisen zum Datenschutz und nutzungsbasierter Online-Werbung.