
S + S Grundbesitz GmbH
Firma S+S Grundbesitzgesellschaft mbH
004 ···
Nr. anzeigenPreise & Kosten
Provision für Mieter
provisionsfrei
Warum sehe ich diese Anzeige? – Du siehst diese Anzeige basierend auf Ihrer Navigation auf unserer Website und den Suchkriterien, die du verwendet hast.
Lage
Marburger Südstadt - attraktiver Gewerbestandort mit Perspektive
Die Marburg Südstadt zählt zu den dynamischsten Entwicklungsstandorten der Universitätsstadt und gewinnt zunehmend an Bedeutung als moderner Gewerbestandort. Insbesondere das Umfeld rund um das FOUR MARBURG bietet ideale Voraussetzungen für Unternehmen...
Büro-/Praxisfläche
Kategorie
Praxis
Baujahr
2028
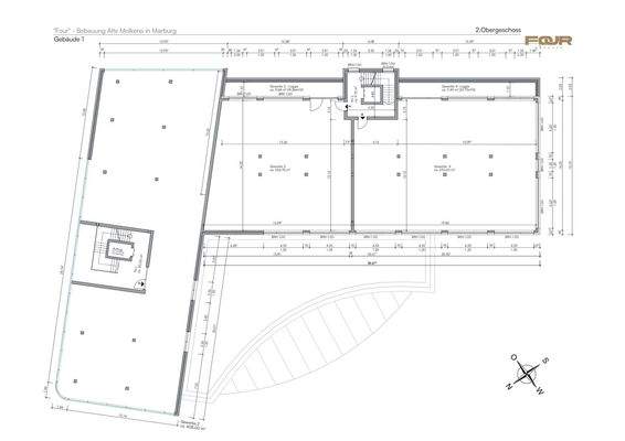
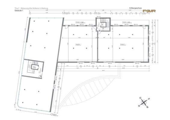
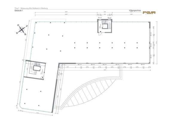
Geschoss
1. Geschoss
Details
Objektbeschreibung
Die angebotene Gewerbefläche im FOUR Business ist Teil von FOUR Marburg, einem modernen Projekt mit insgesamt vier Häusern, und bietet Unternehmen ein architektonisch durchdachtes Umfeld mit moderner Gestaltung und hochwertiger Ausstattung.
Die großzügigen, lichtdurchfluteten Flächen lassen sich flexibel strukturieren und...
Ausstattung
. Attraktive Fläche im 1. Obergeschoss
. ca. 250m² Gewerbefläche
. individuelle Raumlösungen gegen Aufpreis möglich
. Mietbeginn bei Projektfertigstellung
. Mindestmietlaufzeit 15 Jahre mit Anschlussoption
Tiefgarage
. Maximaler Komfort: Direkter Zugang zum Aufzug
. Schutz und Sicherheit: Moderne...
Preisinformation
Nettokaltmiete: 5.000,00 EUR
Weitere Informationen
Stichworte
Gesamtfläche: 250,00 m²
Anbieter der Immobilie

S + S Grundbesitz GmbH
Online-ID: 2n5ka5s
Referenznummer: 109.1_1
Finde Angebote wie dieses
Hier geht es zu unserem Impressum, den Allgemeinen Geschäftsbedingungen, den Hinweisen zum Datenschutz und nutzungsbasierter Online-Werbung.