

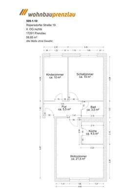
Wohnbau GmbH Prenzlau
Team Vermietungsexperten
039 ···
Nr. anzeigenPreise & Kosten
Kaution
1.200,00 €
Warum sehe ich diese Anzeige? – Du siehst diese Anzeige basierend auf Ihrer Navigation auf unserer Website und den Suchkriterien, die du verwendet hast.
Lage
Die Stadt Prenzlau ist die Kreisstadt der wunderschönen Uckermark und liegt verkehrsgünstig etwa 100 km nördlich von Berlin und 50 km westlich von Stettin.
Kultur- und Naturliebhaber schätzen die Attraktivität der Stadt, die sich in den letzten Jahren zu einem beliebten Urlaubsziel entwickelt hat. Prenzlau punktet mit...
Die Wohnung
Wohnungslage
4. Geschoss
Bezug
sofort
Wohnanlage
Energie & Heizung
Warum sehe ich diese Anzeige? – Du siehst diese Anzeige basierend auf Ihrer Navigation auf unserer Website und den Suchkriterien, die du verwendet hast.
Energieausweistyp
Verbrauchsausweis
Gebäudetyp
Wohngebäude
Effizienzklasse
C
Endenergieverbrauch
84,00 kWh/(m²·a)
Weitere Energiedaten
Energieträger
Gas
Heizungsart
Zentralheizung
Details
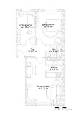
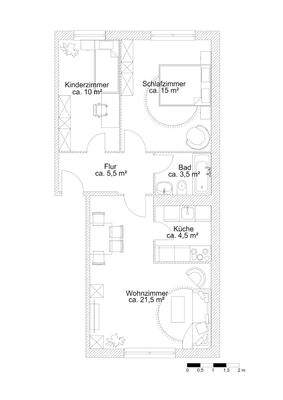
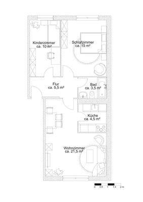
Objektbeschreibung
Der Klassiker WBS 70 - diese Wohnungen sind Kult!Die Grundrisse sind effektiv gestaltet - die Wege kurz, das Platzangebot groß und die Miete klein! Jede Wohnung verfügt über einen geräumigen Balkon.
Sie empfangen digitales Kabelfernsehen und Highspeed-Internet ist mit bis zu 250 Mbit/s über einen Anbieter Ihrer Wahl...
Ausstattung
Diese 3-Raum-Wohnung liegt im 4. Obergeschoss und verfügt über ein Wannenbad sowie einen großzügigen Balkon. Die Küche punktet mit einer Durchreiche zum Wohnzimmer.
Preisinformation
Nettokaltmiete: 400,00 EUR
Anbieter der Immobilie

Online-ID: 2n5h95l
Referenznummer: 1/509/1/10
Finde Angebote wie dieses
Hier geht es zu unserem Impressum, den Allgemeinen Geschäftsbedingungen, den Hinweisen zum Datenschutz und nutzungsbasierter Online-Werbung.