
APM Kleppel Immobilien und Verwaltung
Herr Norman Scholz
037 ···
Nr. anzeigenPreise & Kosten
Provision für Käufer
4,76% min. 3.570€ incl. MwSt.
Lage
Diese Immobilie befindet sich in einer ruhigen und dennoch verkehrsgünstigen Lage in Chemnitz. Hier genießen Sie das Beste aus beiden Welten: eine friedliche Wohnumgebung und eine hervorragende Anbindung an öffentliche Verkehrsmittel und wichtige Verkehrsknotenpunkte.
- Der öffentliche Personennahverkehr (ÖPNV) ist nur...
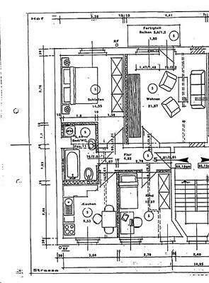
Die Wohnung
Wohnungslage
2. Geschoss
Derzeitige Nutzung
vermietet
Wohnanlage
Energie & Heizung
Warum sehe ich diese Anzeige? – Du siehst diese Anzeige basierend auf Ihrer Navigation auf unserer Website und den Suchkriterien, die du verwendet hast.
Weitere Energiedaten
Energieträger
Gas
Heizungsart
Zentralheizung
Details
Objektbeschreibung
Entdecken Sie diese charmante und gepflegte Etagenwohnung im Herzen von Chemnitz. Dieses 3-Zimmer-Apartment bietet mit seinen 69 m² Wohnfläche eine ideale Kombination aus Komfort und Funktionalität.
Die Wohnung befindet sich im 2. Obergeschoss eines gepflegten Gebäudes mit insgesamt 2 Etagen. Die letzte Modernisierung...
Ausstattung
gut aufgeteilte Wohnung mit Balkon, großzügiges Bad mit Wanne, große Essküche mit gefliestem Fußboden, Balkon nach Süd-Westen ausgerichtet, Kellerabteil, Gartennutzung möglich
Weitere Informationen
Sonstiges
Alle Angaben im Exposé beziehen sich auf die uns
vorliegenden Pläne, Unterlagen sowie die Aussagen des
Eigentümers. Für Richtigkeit, Irrtümer und Änderungen
der Angaben übernehmen wir keine Haftung.
Stichworte
Anzahl der Schlafzimmer: 1, Anzahl der Badezimmer: 1, Anzahl Balkone: 1, Bundesland...
Dokumente
Anbieter der Immobilie
APM Kleppel Immobilien und Verwaltung
Clausstraße 76-80, 09126 Chemnitz
Online-ID: 2n5fn58
Referenznummer: 9LS_WE05
Finde Angebote wie dieses
Hier geht es zu unserem Impressum, den Allgemeinen Geschäftsbedingungen, den Hinweisen zum Datenschutz und nutzungsbasierter Online-Werbung.