

Sparkasse Lörrach-Rheinfelden Immobiliencenter
Herr Astrit Gashi
076 ···
Nr. anzeigenPreise & Kosten
Provision für Käufer
3,57 % inkl. MwSt.
Lage
Die Immobilie befindet sich in zentraler Lage von 79400 Kandern, einer beliebten und lebenswerten Stadt im schönen Markgräflerland. Das Zentrum mit seinen Einkaufsmöglichkeiten, Restaurants, Ärzten, Schulen und Kindergärten ist bequem zu Fuß erreichbar. Die Umgebung bietet eine hervorragende Infrastruktur sowie eine...
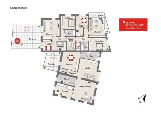
Das Haus
Kategorie
Mehrfamilienhaus
Baujahr
1983
Bezug
nach Vereinbarung
Derzeitige Nutzung
vermietet
Energie & Heizung
Warum sehe ich diese Anzeige? – Du siehst diese Anzeige basierend auf Ihrer Navigation auf unserer Website und den Suchkriterien, die du verwendet hast.
Energieausweistyp
Verbrauchsausweis
Gebäudetyp
Wohngebäude
Baujahr laut Energieausweis
1983
Wesentliche Energieträger
Gas
Gültigkeit
20.11.2018 bis 20.11.2028
Effizienzklasse
E
Endenergieverbrauch
142,00 kWh/(m²·a) - Warmwasser enthalten
Weitere Energiedaten
Haustyp
Massivhaus
Energieträger
Gas
Heizungsart
Zentralheizung
Details
Objektbeschreibung
Willkommen zu einer seltenen Gelegenheit im idyllischen Kandern!
Dieses außergewöhnliche Immobilienensemble vereint historischen Charme, solide Bauqualität und vielseitige Nutzungsmöglichkeiten. Es besteht aus einem charaktervollen 1-2-Familienhaus aus ca. 1900 sowie einem angrenzenden, sehr gepflegten 5-Familienhaus, das...
Ausstattung
Individuelle Ausstattungsmerkmale:
- Gas-Zentralheizung
Modernisierungen & Ausstattung im Überblick
- 1-2-Familienhaus, Baujahr ca. 1900
- Wohnfläche aktuell ca. 100-120 m²
- Gas-Zentralheizung (2006)
- Fenster & Dachflächenfenster größtenteils erneuert
- Teilunterkellerung (ca. 15...
Weitere Informationen
Sonstiges
Diese Immobilie wird Ihnen ausschließlich vom ImmobilienCenter der Sparkasse Lörrach-Rheinfelden angeboten. Eine Besichtigung des Objektes ist daher nur nach vorheriger Anmeldung über unser Büro möglich. Selbständige Besichtigungen sind vom Eigentümer unerwünscht. Wir bitten Sie, dieses zu berücksichtigen und...
Anbieter der Immobilie
Sparkasse Lörrach-Rheinfelden Immobiliencenter
Haagener Str. 2, 79539 Lörrach

Online-ID: 2n5ds55
Referenznummer: 3799
Finde Angebote wie dieses
Hier geht es zu unserem Impressum, den Allgemeinen Geschäftsbedingungen, den Hinweisen zum Datenschutz und nutzungsbasierter Online-Werbung.