

Wohndealer Immobilien GmbH & Co. KG
Herr Sebastian Hunold
+49 ···
Nr. anzeigenPreise & Kosten
Provision für Käufer
3,57 % inkl. MwSt.
Der Käufer verpflichtet sich im Falle des Erwerbs des vorstehenden Objektes die Kosten des Kaufs an die Firma Wohndealer Immobilien GmbH & Co. Weitere Informationen siehe Provisionshinweis.
Abschreibung/Anlage
Denkmalschutz-Afa
Lage
Das Haus liegt im angesehenen Stadtteil Gohlis-Nord. Das geschlossene Gründerzeitviertel beeindruckt durch seine ruhige Lage in Zentrumsnähe und durch die prächtigen Villen. Unverändert ist es eines der gefragtesten Wohngebiete Leipzigs.
Die Immobilie liegt rund 3,6 km nördlich vom Stadtzentrum und bietet somit ein...
Die Wohnung
Derzeitige Nutzung
vermietet
Wohnanlage
Energie & Heizung
Warum sehe ich diese Anzeige? – Du siehst diese Anzeige basierend auf Ihrer Navigation auf unserer Website und den Suchkriterien, die du verwendet hast.
Energieausweis: für diesen Gebäudetyp nicht notwendig
Weitere Energiedaten
Energieträger
Gas
Heizungsart
Zentralheizung
Details
Objektbeschreibung
Kurzbeschreibung
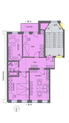
CHARMANTE WOHNUNG IN LEIPZIG // Gehobene 3-Zimmer Wohnung mit Parkettfußboden und Balkon
Objekt
Die Etagenwohnung befindet sich im Stadtteil Gohlis-Nord, bietet eine Wohnfläche von ca. 78 m² und ist aktuell bewohnt. Die vollsanierte Wohnung verfügt über drei Zimmer, darunter zwei Schlafzimmer...
Ausstattung
Lichtdurchflutete 3-Zimmer-Wohnung mit großzügigem Schnitt und sehr guten Ausstattungsdetails:
. Hochwertiger Parkettfußbnoden in allen Wohnräumen und im Flur
. geräumige Wohnküche
. Bad mit Badewanne
. Wohnzimmer
. Südbalkon mit Blick ins Grüne
. Großzügiger Kellerraum
Die Wohnung besticht durch...
Weitere Informationen
Provisionshinweis
3,57 % inkl. MwSt.
Der Käufer verpflichtet sich im Falle des Erwerbs des vorstehenden Objektes die Kosten des Kaufs an die Firma Wohndealer Immobilien GmbH & Co. KG in 04105 Leipzig eine Provision in Höhe von 3,57 % des Kaufpreises inklusive Umsatzsteuer zu zahlen. Es wird an dieser Stelle...
Anbieter der Immobilie

Online-ID: 2n5d755
Referenznummer: 1001-4-008-006
Finde Angebote wie dieses
Hier geht es zu unserem Impressum, den Allgemeinen Geschäftsbedingungen, den Hinweisen zum Datenschutz und nutzungsbasierter Online-Werbung.