
Sparda Immobilien GmbH
Herr John Eichler
004 ···
Nr. anzeigenPreise & Kosten
Provision für Käufer
3,00 % inkl. MwSt.
Lage
Lohbrügge zählt seit Jahren zu den gefragtesten Stadtteilen Hamburgs - und das aus gutem Grund. Die Nähe zur Innenstadt, eine hervorragende Infrastruktur mit vielfältigen Einkaufsmöglichkeiten sowie die direkte Anbindung an das Bergedorfer Einkaufscenter (CCB) machen den Stadtteil besonders attraktiv. Ob Supermärkte...
Das Haus
Kategorie
Reihenendhaus
Baujahr
2001
Energie & Heizung
Warum sehe ich diese Anzeige? – Du siehst diese Anzeige basierend auf Ihrer Navigation auf unserer Website und den Suchkriterien, die du verwendet hast.
Energieausweistyp
Verbrauchsausweis
Gebäudetyp
Wohngebäude
Baujahr laut Energieausweis
2001
Wesentliche Energieträger
FERN
Gültigkeit
bis 09.03.2026
Effizienzklasse
C
Endenergieverbrauch
83,40 kWh/(m²·a)
Weitere Energiedaten
Energieträger
Fernwärme
Heizungsart
Fußbodenheizung
Details
Objektbeschreibung
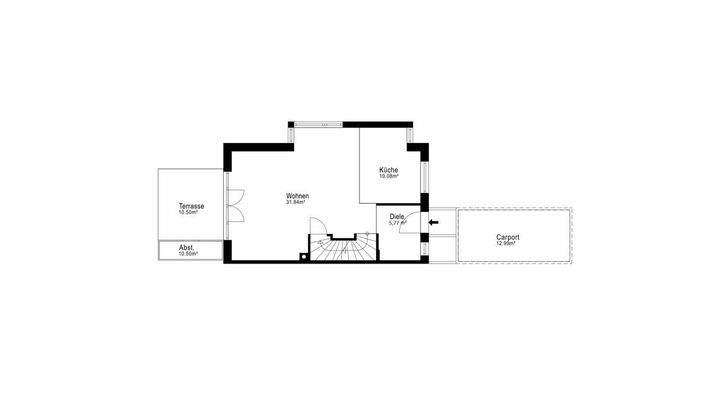
Dieses gepflegte Reihenendhaus aus dem Jahr 2001 vereint großzügigen Wohnraum mit einer durchdachten Raumaufteilung - ideal für Familien, die Wert auf Komfort und Stil legen.
Auf ca. 136,00 m² Wohnfläche verteilt über drei Etagen bietet das Haus auf einem 212,00 m² großen Grundstück alles, was modernes Wohnen ausmacht...
Ausstattung
Fenster:
Kunststoffrahmen mit Isolierverglasung
Heizung und Warmwasser
Fernwärmeanlage, Fußbodenheizung im Erdgeschoss
Bodenbeläge
hochwertige Fliesen, Laminat, Teppichboden
Küche
helle, hochwertige Einbauküche, schwarze Granit-Arbeitsplatte, vollständig ausgestattet mit...
Weitere Informationen
Sonstiges
Die Courtage in Höhe von 3,00 % inkl. der gesetzl. gültigen MwSt. ist vom Käufer an die Sparda Immobilien GmbH zu zahlen.
Weitere attraktive Angebote finden Sie auch auf www.spardaimmobilien.de
Stichworte
Carport vorhanden, Stellplatz vorhanden, Anzahl der Schlafzimmer: 5, Anzahl der Badezimmer...
Anbieter der Immobilie
Sparda Immobilien GmbH
Beim Strohhause 27, 20097 Hamburg
Online-ID: 2n5d65w
Referenznummer: JE_10003
Finde Angebote wie dieses
Hier geht es zu unserem Impressum, den Allgemeinen Geschäftsbedingungen, den Hinweisen zum Datenschutz und nutzungsbasierter Online-Werbung.