

Schnorrenberger Immobilien GmbH & Co.KG
Herr Torsten Neugebauer
021 ···
Nr. anzeigenPreise & Kosten
Provision für Käufer
provisionsfrei
Lage
Wie sich alles verändert ... um 1850 begann man in Weitmar schon damit, Kohle abzubauen und zu Tage zu fördern. Die Nähe Weitmars zum Ruhrufer war ideal für den Transport der abgebauten Energiequelle. Fortan entwickelte sich das gesamte Ruhrgebiet zum Hotspot für den Bergbau und die Stahlindustrie.
Eine der wichtigsten...
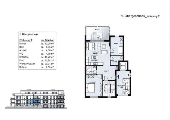
Die Wohnung
Wohnungslage
1. Geschoss
Bezug
01.07.2026
Wohnanlage
Energie & Heizung
Warum sehe ich diese Anzeige? – Du siehst diese Anzeige basierend auf Ihrer Navigation auf unserer Website und den Suchkriterien, die du verwendet hast.
Energieausweistyp
Bedarfsausweis
Gebäudetyp
Wohngebäude
Baujahr laut Energieausweis
2026
Wesentliche Energieträger
Strom
Gültigkeit
12.10.2023 bis 13.10.2033
Effizienzklasse
A+
Endenergiebedarf
16,00 kWh/(m²·a)
Weitere Energiedaten
Energieträger
Elektro
Heizungsart
Fußbodenheizung
Details
Objektbeschreibung
Nur noch 3 Einheiten in der Belle Etagé stehen zur Verfügung.
Nutzen Sie die Möglichkeit, die letzten 3 Wohnungen als Kapitalanlage zu erwerben. Die Wohnungen verfügen über 2 - 3 Zimmer, ca. 90 - ca. 99 m2 und können noch nach Ihren Vorstellungen angepasst werden!
Echt! Töfte! Ein toller Mix für Familien, Paare...
Ausstattung
Exklusive Ausstattung inklusive: Ein Auszug aus der Baubeschreibung.
- Massivbauweise als KFW 55 Effizienzhaus nach GEG 2020 geplant und vollständig unterkellert.
- Das Haus erhält zwei Treppenhäuser mit Aufzug vom Kellergeschoss bis in die oberste Etage.
- Von der Straße und vom Keller aus ist der Zugang zu jeder...
Preisinformation
3 Tiefgaragenstellplätze
Weitere Informationen
Sonstiges
Alle in den Zeichnungen und Fotos dargestellten Einrichtungsgegenstände sind lediglich Möblierungsvorschläge und nicht im Kaufpreis enthalten. Sonstige Einbauten, Gewerke, Gebühren, Honorare oder sonstige Leistungen sind im Kaufpreis nur insoweit enthalten, wie sie in der Baubeschreibung ausdrücklich erwähnt sind...
Anbieter der Immobilie
Schnorrenberger Immobilien GmbH & Co.KG
Kaiserstr. 25, 40479 Düsseldorf

Online-ID: 2n5bn5x
Referenznummer: P2020
Finde Angebote wie dieses
Hier geht es zu unserem Impressum, den Allgemeinen Geschäftsbedingungen, den Hinweisen zum Datenschutz und nutzungsbasierter Online-Werbung.