
Evernest GmbH
Ninh Nguyen
+49 ···
Nr. anzeigenPreise & Kosten
Provision für Käufer
3.57 inkl. MwSt.
Bei Abschluss eines notariellen Kaufvertrages ist eine Käuferprovision vom Käufer in Höhe von 3.57 % inkl. MwSt. aus dem Kaufpreis fällig.
Lage
Die Wohnung befindet sich in der Reginharstraße in Bergisch Gladbach-Bensberg, einem der markantesten und bekanntesten Wohnstandorte der Stadt. Die Hochhausbebauung mit ihren großzügigen Grünflächen verleiht dem Quartier einen urbanen Charakter, der nicht ohne Grund häufig als "Little Manhattan" von Bensberg bezeichnet...
Die Wohnung
Wohnungslage
7. Geschoss
Wohnanlage
Energie & Heizung
Warum sehe ich diese Anzeige? – Du siehst diese Anzeige basierend auf Ihrer Navigation auf unserer Website und den Suchkriterien, die du verwendet hast.
Energieausweistyp
Verbrauchsausweis
Gebäudetyp
Wohngebäude
Effizienzklasse
C
Endenergieverbrauch
84,70 kWh/(m²·a) - Warmwasser enthalten
Weitere Energiedaten
Energieträger
Gas
Details
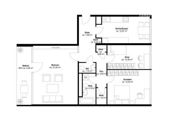
Objektbeschreibung
Diese attraktive, ca. 89 m² große 3-Zimmer-Eigentumswohnung in der 7. Etage überzeugt durch einen tollen Grundriss, einen sehr guten Sanierungszustand sowie eine außergewöhnliche Aussicht. Dank Aufzug ist die Wohnung komfortabel erreichbar und sowohl für Eigennutzer als auch für Kapitalanleger hervorragend geeignet.
Der...
Ausstattung
- 89 m²
- 3 Zi
- 7. OG
- Gäste-WC
- Aufzug
- barrierearm
- modernisiert
- Weitblick über Bensberg
Weitere Informationen
Stichworte
Stellplatz vorhanden, Nutzfläche: 8,00 m², Anzahl der Schlafzimmer: 2, Anzahl der Badezimmer: 1, Anzahl der separaten WCs: 1, Anzahl Balkone: 1, Balkon-Terrassen-Fläche: 9,00 m²
Anbieter der Immobilie
Online-ID: 2n5aw57
Referenznummer: L-OMX66AJ
Finde Angebote wie dieses
Hier geht es zu unserem Impressum, den Allgemeinen Geschäftsbedingungen, den Hinweisen zum Datenschutz und nutzungsbasierter Online-Werbung.