

Frank+Schultz Immobilien
Frau Sybille Frank
+49 ···
Nr. anzeigenPreise & Kosten
Provision für Käufer
3% inkl. MwSt.
Die Provision ist verdient und fällig mit der notariellen Beurkundung und richtet sich nach den gesezlichen Vorschriften.
Lage
Die Wohnung befindet sich im beliebten Dortmunder Stadtteil Hacheney, einer ruhigen und grünen Wohnlage im Süden der Stadt. Die Umgebung zeichnet sich durch eine angenehme Kombination aus naturnahem Wohnen und guter Anbindung an die städtische Infrastruktur aus.
Besonders hervorzuheben ist die unmittelbare Nähe zu...
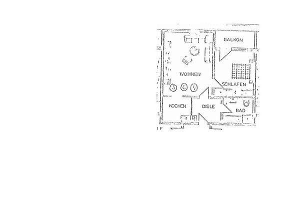
Die Wohnung
Wohnungslage
Erdgeschoss
Wohnanlage
Energie & Heizung
Warum sehe ich diese Anzeige? – Du siehst diese Anzeige basierend auf Ihrer Navigation auf unserer Website und den Suchkriterien, die du verwendet hast.
Energieausweistyp
Verbrauchsausweis
Gebäudetyp
Wohngebäude
Baujahr laut Energieausweis
1975
Wesentliche Energieträger
Öl
Gültigkeit
26.11.2018 bis 26.11.2028
Endenergieverbrauch
113,00 kWh/(m²·a)
Weitere Energiedaten
Energieträger
Öl
Heizungsart
Zentralheizung
Details
Objektbeschreibung
In ruhiger Lage, direkt hinter dem Rombergpark/Tierpark bieten wir Ihnen diese moderne und gut geschnittene 2,5-Zimmer Hochparterrewohnung an. Die Wohnung bietet genau die richtige Balance aus Komfort, Funktionalität und Raum zur persönlichen Entfaltung.
Die gut geschnittene Wohnung überzeugt mit einem durchdachten...
Ausstattung
Das gepflegte Mehrfamilienhaus wurde 1975 erbaut und wird über eine Öl-Zentralheizung beheizt.
Die Warmwasserversorgung erfolgt über Durchlauferhitzer.
Alle Fenster sind mit Rollläden ausgestattet, die zusätzlichen Komfort sowie Sicht- und Sonnenschutz bieten.
Zur Wohnung gehört außerdem ein eigener Kellerraum, der...
Preisinformation
1 Garagenstellplatz
Weitere Informationen
Sonstiges
Bitte haben Sie Verständnis dafür, dass wir grundsätzlich nur Anfragen mit Angabe Ihres vollständigen Namens, Ihrer Anschrift und Telefonnummer, unter der Sie tagsüber zu erreichen sind, bearbeiten. Selbstverständlich werden Ihre Daten vertraulich behandelt.
Aus Gründen der Diskretion und auf Wunsch des...
Anbieter der Immobilie
Frank+Schultz Immobilien
Rebhuhnweg 32, 44225 Dortmund

Online-ID: 2n58q5w
Referenznummer: FS50451
Finde Angebote wie dieses
Hier geht es zu unserem Impressum, den Allgemeinen Geschäftsbedingungen, den Hinweisen zum Datenschutz und nutzungsbasierter Online-Werbung.