
Engel Immobilien
Herr Dietmar Obermaier
096 ···
Nr. anzeigenPreise & Kosten
Provision für Käufer
3% inkl. 19% MwSt. vom tatsächlichem Kaufpreis
Lage
Die Stadt Weiden bietet alle Einkaufsmöglichkeiten. Kindergärten, Schulen bis zur Fachhochschule. Ärzte, Fachärzte und Klinikum sind vor Ort. Für die Freizeitgestaltung ist ebenfalls bestens gesorgt (Thermenwelt, Eishalle, Tennis, Reiten u.v.m). Die Verkehrsanbindung ist ebenfalls sehr gut durch die A 93, B 470 und B22. Die...
Das Haus
Kategorie
Stadthaus
Energie & Heizung
Warum sehe ich diese Anzeige? – Du siehst diese Anzeige basierend auf Ihrer Navigation auf unserer Website und den Suchkriterien, die du verwendet hast.
Energieausweistyp
Verbrauchsausweis
Gebäudetyp
Wohngebäude
Baujahr laut Energieausweis
1989
Wesentliche Energieträger
Gas
Effizienzklasse
B
Endenergieverbrauch
63,20 kWh/(m²·a)
Weitere Energiedaten
Energieträger
Gas
Heizungsart
Zentralheizung
Details
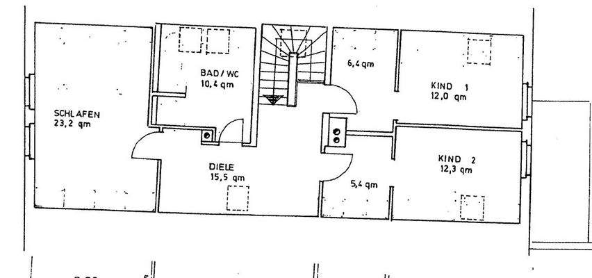
Objektbeschreibung
Das Altstadthaus aus dem 16. Jahrhundert lädt zum modernen Wohnen ein.
Mit viel Liebe zum Detail wurde es über die Jahrzehnte gepflegt, modernisiert und behutsam weiterentwickelt – und wartet nun darauf, ein neues Kapitel mit seinen zukünftigen Bewohnern zu beginnen.
Schon beim Betreten spürt man die Großzügigkeit...
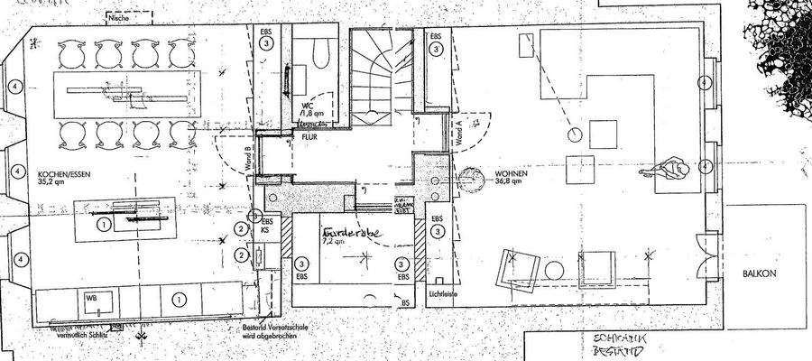
Ausstattung
Gebäude: -Ursprungsbaujahr im 16. Jahrhundert
-eine Kernsanierung erfolgte im Jahr 1989
-eine umfangreiche Modernisierung fand im Jahr 2018 statt mit Umbau im 1. und 2. OG mit neuen Bädern und
Toiletten sowie einer vollständigen Umgestaltung
des Küchen-, Ess- und Wohnbereiches im 1. OG
sowie der...
Weitere Informationen
Ein Haus für Menschen, die das Besondere suchen. Dieses Altstadthaus ist kein Objekt
von der Stange. Es ist ein Zuhause für Menschen, die Raum, Geschichte und Individualität schätzen. Für Familien, die urban leben und dennoch großzügig wohnen möchten.
Für alle, die morgens durch die Altstadt gehen und abends in ihr...
Anbieter der Immobilie
Online-ID: 2n5865j
Referenznummer: 2005
Finde Angebote wie dieses
Hier geht es zu unserem Impressum, den Allgemeinen Geschäftsbedingungen, den Hinweisen zum Datenschutz und nutzungsbasierter Online-Werbung.