

Kupferhaus Immobilien
Frau Vendi Kupfer
082 ···
Nr. anzeigenPreise & Kosten
Provision für Käufer
3,57 % inkl. MwSt.
Lage
In besonders attraktiver und naturnaher Wohnlage von Fürstenfeldbruck befindet sich dieses großzügige Anwesen, das Ruhe, Naturverbundenheit und eine sehr gute Infrastruktur ideal miteinander verbindet.
Das Haus liegt im Stadtteil Buchenau, einer ruhigen, gewachsenen Wohngegend mit gepflegtem Umfeld und geringer...
Das Haus
Kategorie
Villa
Baujahr
1966
Bezug
Ab sofort
Energie & Heizung
Warum sehe ich diese Anzeige? – Du siehst diese Anzeige basierend auf Ihrer Navigation auf unserer Website und den Suchkriterien, die du verwendet hast.
Energieausweistyp
Bedarfsausweis
Gebäudetyp
Wohngebäude
Baujahr laut Energieausweis
1968
Wesentliche Energieträger
OEL
Gültigkeit
bis 14.05.2034
Effizienzklasse
H
Endenergiebedarf
276,50 kWh/(m²·a)
Weitere Energiedaten
Energieträger
Öl
Heizungsart
offener Kamin, Zentralheizung
Details
Objektbeschreibung
Es gibt Immobilien, die man nicht einfach kauft. Man entscheidet sich für sie.
Dieses außergewöhnliche Anwesen in der Buchenau in Fürstenfeldbruck, direkt an den geschützten Amperauen gelegen, gehört genau in diese Kategorie. Auf einem großzügigen, parkähnlichen angelegten Grundstück entfaltet sich eine Villa mit...
Ausstattung
*** Großzügiges, parkähnliches Grundstück mit altem Baumbestand
*** Direkte Lage an den Amperauen (ca. 70 m zur Amper)
*** Großer Swimmingpool im Garten
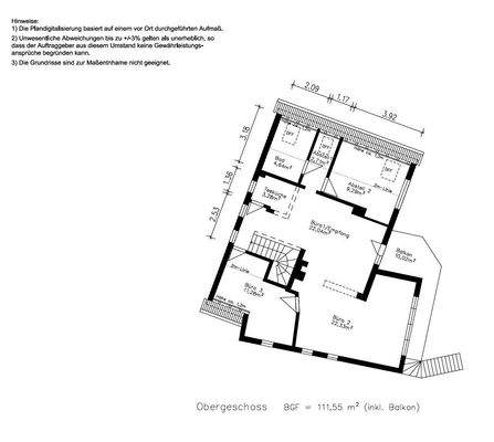
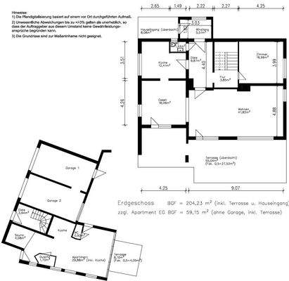
*** Haupthaus mit ca. 254 m² Wohnfläche
*** 7 Zimmer im Haupthaus
*** Vollständig unterkellertes Haupthaus
*** 1-Zimmer-Apartment mit rd. 41 m² Wohnfläche...
Preisinformation
3 Stellplätze
2 Garagenstellplätze
Weitere Informationen
Sonstiges
***Die 360°-Rundgänge stehen Ihnen in der Galerie zur Verfügung und ermöglichen einen umfassenden ersten Eindruck der Immobilie
***Das Haupthaus ist vollständig unterkellert und bietet zusätzliche Nutz- und Abstellflächen.
***Zum Anwesen gehören zwei Garagen sowie eine großzügige Einfahrt mit...
Anbieter der Immobilie
Kupferhaus Immobilien
Hauptstraße 17, 82256 Fürstenfeldbruck

Online-ID: 2n57g58
Referenznummer: GroßesAnwesen in FFB
Finde Angebote wie dieses
Hier geht es zu unserem Impressum, den Allgemeinen Geschäftsbedingungen, den Hinweisen zum Datenschutz und nutzungsbasierter Online-Werbung.