

Plusbau Baubetreuung GmbH
Herr Max Guggenberger
+49 ···
Nr. anzeigenPreise & Kosten
Provision für Käufer
provisionsfrei
Lage
Warum Wiebelsheim?
Wiebelsheim ist ein idyllischer Ort zwischen Weinbergen, Wiesen und Feldern. Hier findet man Ruhe und Natur – ohne auf Komfort verzichten zu müssen.
Nur wenige Minuten nach Bad Windsheim. Schulen, Ärzte, Einkaufsmöglichkeiten und Freizeitangebote sind schnell erreichbar.
Ruhige, naturnahe...
Das Haus
Kategorie
Einfamilienhaus
Baujahr
2027
Energie & Heizung
Warum sehe ich diese Anzeige? – Du siehst diese Anzeige basierend auf Ihrer Navigation auf unserer Website und den Suchkriterien, die du verwendet hast.
Weitere Energiedaten
Energieträger
Elektro
Heizungsart
Fußbodenheizung, Luft-/Wasser-Wärmepumpe, Zentralheizung
Details
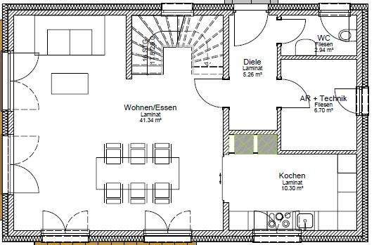
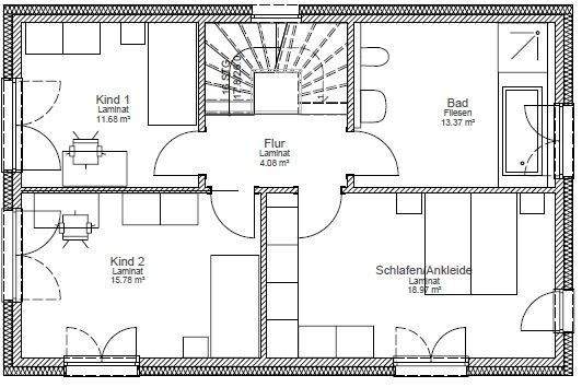
Objektbeschreibung
Im Kaufpreis enthalten:
- das Grundstück mit ca. 509 m²
- Ihr Neubau mit ca. 130 m² Wohnfläche
- Fußbodenheizung
- 3-fach verglaste Fenster
- elektrische Rollläden an allen Fenstern der Wohnräume
- Fliesen im Badezimmer, Gäste-WC, Diele und Technikraum
- Gewährleistung nach BGB (5 Jahre)
-...
Ausstattung
Schönes Einfamilienhaus
EG:
Wohn- Esszimmer und offene Küche
Gäste-WC
Technik/Abstellraum
Diele
OG:
Schlafzimmer und 2 Kinderzimmer
Badezimmer mit Badewanne, Dusche und WC mit Fenster
Flur
Abgebildete Möbel, die Küche und Einrichtungsgegenstände sind nicht Bestandteil des...
Anbieter der Immobilie

Online-ID: 2n55p5e
Finde Angebote wie dieses
Hier geht es zu unserem Impressum, den Allgemeinen Geschäftsbedingungen, den Hinweisen zum Datenschutz und nutzungsbasierter Online-Werbung.