
MAKLERAGENTUR Martin Leupold
Herr/Frau Martin Leupold
022 ···
Nr. anzeigenPreise & Kosten
Kaution
2 Monatsmieten
Warum sehe ich diese Anzeige? – Du siehst diese Anzeige basierend auf Ihrer Navigation auf unserer Website und den Suchkriterien, die du verwendet hast.
Lage
Die Wohnung befindet sich in ruhiger und zugleich zentraler Lage im beliebten Bonner Stadtteil Bonn-Ippendorf.
Das Zentrum von Poppelsdorf ist in wenigen Minuten erreichbar und bietet:
• Supermärkte und Geschäfte des täglichen Bedarfs
• Ärzte und Apotheken
• Restaurants, Cafés und Bars
•...
Die Wohnung
Kategorie
Maisonette
Wohnungslage
1. Geschoss
Bezug
sofort
Derzeitige Nutzung
frei
Wohnanlage
Energie & Heizung
Warum sehe ich diese Anzeige? – Du siehst diese Anzeige basierend auf Ihrer Navigation auf unserer Website und den Suchkriterien, die du verwendet hast.
Gebäudetyp
Wohngebäude
Effizienzklasse
F
Weitere Energiedaten
Energieträger
Gas
Heizungsart
Zentralheizung
Details
Objektbeschreibung
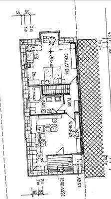
Diese gepflegte und großzügig geschnittene Maisonette-Wohnung erstreckt sich über das 1. Obergeschoss und das Dachgeschoss eines ruhigen 4-Parteienhauses. Die Wohnung überzeugt durch ihre helle Atmosphäre sowie eine durchdachte Raumaufteilung.
Ein besonderes Highlight ist die Loggia im Dachgeschoss mit einem herrlichen...
Ausstattung
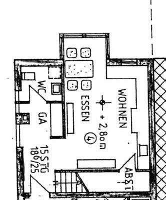
Raumaufteilung
1. Obergeschoss:
• Flur
• Große Wohnküche mit Erker
• Abstellraum
• Gäste-WC mit Fenster
• Garderobenbereich
Dachgeschoss:
• Helles Wohnzimmer mit Erker
• Großes Schlafzimmer
• Geräumiges Badezimmer
• Loggia
Ausstattung:
• Massives...
Weitere Informationen
Die Wohnung eignet sich ideal für Singles, Paare, aber auch Wohngemeinschaften, die großzügiges Wohnen in ruhiger, aber zentraler Lage schätzen.
Anbieter der Immobilie
MAKLERAGENTUR Martin Leupold
Treptower Weg 11, 53340 Meckenheim
Online-ID: 2n54y5x
Finde Angebote wie dieses
Hier geht es zu unserem Impressum, den Allgemeinen Geschäftsbedingungen, den Hinweisen zum Datenschutz und nutzungsbasierter Online-Werbung.