

Bauteam GmbH
Herr Roman Bürger
0 3 ···
Nr. anzeigenPreise & Kosten
Provision für Käufer
provisionsfrei
Lage
Zum Verkauf steht diese wunderschöne Doppelhaushälfte in einer richtigen Traumlage. Der kleine Ort Wendisch Langendorf ist gelegen in einem Naherholungsgebiet am Rande des Nationalparks „Vorpommersche Boddenlandschaft“, welcher besonders für seine Kranichbeobachtungsmöglichkeiten bekannt ist.
Die Doppelhaushälfte...
Das Haus
Kategorie
Doppelhaushälfte
Energie & Heizung
Warum sehe ich diese Anzeige? – Du siehst diese Anzeige basierend auf Ihrer Navigation auf unserer Website und den Suchkriterien, die du verwendet hast.
Energieausweistyp
Bedarfsausweis
Gebäudetyp
Wohngebäude
Wesentliche Energieträger
Strom
Effizienzklasse
A+
Endenergiebedarf
23,40 kWh/(m²·a)
Weitere Energiedaten
Haustyp
Massivhaus
Energieträger
Elektro
Heizungsart
Fußbodenheizung, Luft-/Wasser-Wärmepumpe, Zentralheizung
Details
Objektbeschreibung
NEUES PROJEKT, ÄHNLICH WIE NACHBARHAUS
!!!Einfach nur schön. Das Haus, die Lage, der Ausblick!!!
In Wendisch Langendorf entsteht auf einem ca. 1.162 m² großem Grundstück ein modern und hochwertig ausgestattetes, in Massivbauweise errichtetes Doppelhaus. Sie können die Immobilie als Dauerwohnsitz nutzen oder aber...
Ausstattung
Doppelhaushälfte zum Dauerwohnen:
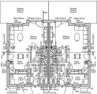
5 Räume - ca. 115,4 m² inkl. 50% der Terrassenfläche -
Raumaufteilung:
- 1 großzügiger Wohn-/ Essbereich mit offener Küche
- 3 Zimmer im DG
- 1 Zimmer im Spitzboden
- 1 Bad mit Dusche & Wanne im DG
- 1 Gäste-WC im EG
- 1 HWR
Weitere Informationen
Besichtigungstermine
Hat dieses exklusive Angebot Ihr Interesse geweckt und wünschen Sie ein
persönliches Beratungsgespräch, dann lassen Sie es uns einfach
wissen! Wir sind gerne für Sie da!
Sie erreichen uns Montag-Freitag von 8.00-16.00 Uhr.
Hinweis/ Sonstiges
Änderungen des Preises oder der...
Anbieter der Immobilie
Bauteam GmbH
Bauhofstraße 1 E, 18439 Stralsund

Online-ID: 2n54x5y
Referenznummer: DHHREBW4DWL
Finde Angebote wie dieses
Hier geht es zu unserem Impressum, den Allgemeinen Geschäftsbedingungen, den Hinweisen zum Datenschutz und nutzungsbasierter Online-Werbung.