

Raiffeisenbank Schrobenhausener Land eG ImmoService
Herr Harald Großhauser
082 ···
Nr. anzeigenPreise & Kosten
Provision für Käufer
3,00 % inkl. MwSt.
Lage
Die Imobilie liegt in Schrobenhausen, Ortsteil Hörzhausen.
Schrobenhausen ist eine wirtschaftlich starke und wichtige Region zwischen Ingolstadt - Augsburg und München geworden. Durch die gute Anbindung über die Bundesstraße B300 und A8 und A9 sind die drei Großstädte gut und schnell zu erreichen. Überregionale Ziele...
Das Haus
Kategorie
Einfamilienhaus
Baujahr
1950
Bezug
nach Vereinbarung
Energie & Heizung
Warum sehe ich diese Anzeige? – Du siehst diese Anzeige basierend auf Ihrer Navigation auf unserer Website und den Suchkriterien, die du verwendet hast.
Energieausweistyp
Bedarfsausweis
Gebäudetyp
Wohngebäude
Baujahr laut Energieausweis
1950
Wesentliche Energieträger
OEL
Gültigkeit
bis 07.12.2032
Effizienzklasse
F
Endenergiebedarf
198,00 kWh/(m²·a)
Details
Objektbeschreibung
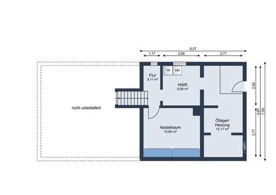
Das ursprünglich 1950 erbaute Haus bietet im Erd- und Obergeschoss insgesamt ca. 157 m² Wohnfläche und ist teilunterkellert.
In den 60ern Jahren wurde das Haus erweitert und zwischen 2014 und 2020 auf Auftrag des Eigentümers von regionalen Handwerkern saniert und modernisiert. Beispielsweise wurde das Dach neu gedeckt...
Ausstattung
Großes Wohnhaus mit großen, hellen Räumen und guter Aufteilung
Bis zu 5 Schlafzimmer
Bäder im EG und OG
Terrasse und Balkon
Geheizt wird das Haus mit einer Öl-Zentralheizung (Bj. 2014), die Wärmeverteilung erfolgt über Heizkörper und Fußbodenheizung in den Bädern .
Weitere Informationen
Stichworte
Nutzfläche: 60,00 m², Anzahl der Schlafzimmer: 4, Anzahl der Badezimmer: 2, Anzahl Terrassen: 1
Anbieter der Immobilie

Online-ID: 2n53j57
Referenznummer: hg429
Finde Angebote wie dieses
Hier geht es zu unserem Impressum, den Allgemeinen Geschäftsbedingungen, den Hinweisen zum Datenschutz und nutzungsbasierter Online-Werbung.