

Annika Lipski Immobilien
Frau Annika Lipski
039 ···
Nr. anzeigenPreise & Kosten
Provision für Käufer
Der Käufer zahlt im Erfolgsfall an die Firma Annika Lipski Immobilien eine Käufer-Maklerprovision in Höhe von 7,14% inklusive 19% Mehrwertsteuer. Die Provision errechnet sich aus dem Kaufpreis und ist fällig am Tag der Beurkundung.
Lage
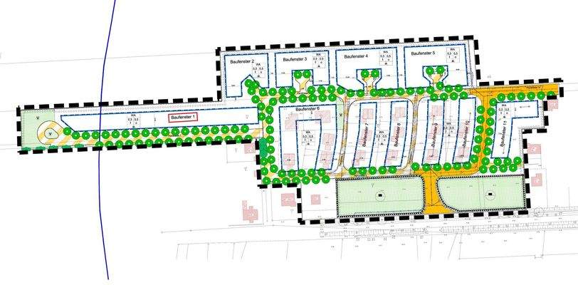
Die hier angebotenen Baugrundstücke liegen im Bebauungsplangebiet "Am Feldrain" Milmersdorf im Baufenster 1.
Milmersdorf ist eine idyllische Gemeinde im Herzen der Uckermark, einer der schönsten Naturlandschaften Brandenburgs. Geprägt von sanften Hügeln, ausgedehnten Wäldern und zahlreichen Seen, bietet der Ort eine...
Das Grundstück
Energie & Heizung
Warum sehe ich diese Anzeige? – Du siehst diese Anzeige basierend auf Ihrer Navigation auf unserer Website und den Suchkriterien, die du verwendet hast.
Energieausweis: für diesen Gebäudetyp nicht notwendig
Details
Objektbeschreibung
Baugrundstücke im B-Plangebiet Nr. 02/1992 „Eigenheimbau“ – Wohngebiet „Am Feldrain“ in Milmersdorf
Zum Verkauf stehen attraktive Baugrundstücke im Geltungsbereich des rechtskräftigen Bebauungsplanes Nr. 02/1992 „Eigenheimbau“, Allgemeines Wohngebiet „Am Feldrain“, BAUFENSTER 1 in der Gemeinde...
Anbieter der Immobilie
Annika Lipski Immobilien
Puschkinstraße 8, 17268 Templin

Online-ID: 2n4z45n
Finde Angebote wie dieses
Hier geht es zu unserem Impressum, den Allgemeinen Geschäftsbedingungen, den Hinweisen zum Datenschutz und nutzungsbasierter Online-Werbung.