LABIN d.o.o.

Iva Kalabric

PRIMOSTEN / MODERNER NEUBAU MIT AUSBLICK (145,87 m² - D1)

€ 790.000
Kaufpreis
k.A.
Wohnfläche
4
Zimmer

Der Anbieter dieses Objekts hat gegenüber der AVIV Germany GmbH als Betreiber dieses Online-Marktplatzes erklärt, nicht als Unternehmer im Sinne des § 1 KSchG zu handeln. Die im Verbraucherschutzrecht der Union verankerten Verbraucherrechte (insbesondere Informationspflichten und Rücktritts- bzw. Widerrufsrechte) finden auf den Vertrag zwischen dem Anbieter des Objekts und Ihnen (dem Interessenten) keine Anwendung.

Gewerblicher Anbieter

Der Anbieter dieses Objekts hat gegenüber der AVIV Germany GmbH als Betreiber dieses Online-Marktplatzes erklärt, als Unternehmer im Sinne des § 1 KSchG zu handeln.

AdresseStraße nicht freigegeben
22202 Primosten 
Auf Karte ansehen

Preise & Kosten

Kaufpreis € 790.000

Provision für Käufer

Bitte beachte, das Angebot kann bei Vertragsabschluss die Zahlung einer Provision beinhalten. Weitere Informationen erhältst Du vom Anbieter.

Lage

Die Wohnung

Wohnungslage

3. Geschoss

Wohnanlage

  • Baujahr: 2025

Details

Objektbeschreibung

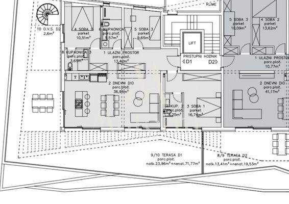
Die Wohnung D1 befindet sich im dritten Stock eines modernen Wohngebäudes und überzeugt durch einen funktionalen Grundriss sowie großzügige Außenbereiche. Netto-Wohnfläche: 145,87 m².

Grundriss und Raumaufteilung:

Eingangsbereich - 13,42 m²

Schlafzimmer 1 - 16,74 m²

Schlafzimmer 2 - 10,51...

Mehr anzeigen

Weitere Informationen

Stichworte
Gesamtfläche: 145,00 m², Anzahl der Schlafzimmer: 3, Anzahl der Badezimmer: 3, Anzahl der Wohn-Schlafzimmer: 1, 3 Etagen, Stadtzentrumslage, modernisiert: 2025

Anbieter der Immobilie

Partner

LABIN d.o.o.

Prilaz Kikova 4, 52220 LABIN

user

Iva Kalabric

Dein Ansprechpartner

Anbieter-Website Anbieter-Profil Anbieter-Impressum

Online-ID: 2n4wh5l

Referenznummer: 4565-195

Finde Angebote wie dieses

imageimageimage

Hier geht es zu unserem Impressum, den Allgemeinen Geschäftsbedingungen, den Hinweisen zum Datenschutz und nutzungsbasierter Online-Werbung.