

D&V Immobilien GmbH & Co. KG
Herr Michael Dethlefs
048 ···
Nr. anzeigenPreise & Kosten
Kaution
5.400,00
Provision für Mieter
1,19 Kaltmieten inkl. MwSt.
Warum sehe ich diese Anzeige? – Du siehst diese Anzeige basierend auf Ihrer Navigation auf unserer Website und den Suchkriterien, die du verwendet hast.
Lage
Heide ist die Kreisstadt Dithmarschens und liegt in der Metropolregion Hamburg. Heide hat etwa 22.000 Einwohner und verfügt über viele Einkaufsmöglichkeiten, Museen, Musikschulen und eine Volkshochschule, sowie eine sehr gute ärztliche Versorgung.
Weiterhin gibt es viele Bildungseinrichtungen von der frühkindlichen Bildung...
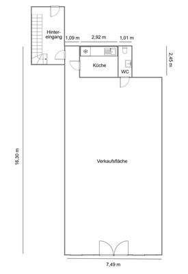
Die Ladenfläche
Kategorie
Verkaufsfläche
Baujahr
2018
Energie & Heizung
Warum sehe ich diese Anzeige? – Du siehst diese Anzeige basierend auf Ihrer Navigation auf unserer Website und den Suchkriterien, die du verwendet hast.
Wärme
Strom
Energieausweistyp
Bedarfsausweis
Gebäudetyp
Nicht-Wohngebäude
Baujahr laut Energieausweis
2018
Wesentliche Energieträger
GAS
Gültigkeit
bis 23.01.2028
Endenergiebedarf (Wärme)
32,00 kWh/(m²·a)
Endenergiebedarf (Strom)
1,00 kWh/(m²·a)
Weitere Energiedaten
Energieträger
Gas
Heizungsart
Fußbodenheizung
Details
Objektbeschreibung
Vermietet wird zu sofort eine großzügige und moderne Gewerbefläche in zentraler Lage in Heide.
Das Gebäude wurde 2018 errichtet und ist mit 3-fach-verglasten Kunststofffenstern ausgestattet.
Die stilvollen und modernen Räumlichkeiten werden mittels einer Fußbodenheizung beheizt.
Die Verkaufsfläche umfasst rund...
Ausstattung
- 3-fach-verglaste Kunststofffenster
- Fußbodenheizung
- Küchenzeile
- WC
- 1 Pkw-Stellplatz
Weitere Informationen
Sonstiges
Der Mieter zahlt eine Vermittlungscourtage in Höhe von 1,19 Kaltmieten inklusive der gesetzlichen Mehrwertsteuer. Die Courtage ist fällig bei Abschluss des Mietvertrages.
Alle vorstehenden Angaben beruhen auf Informationen des Eigentümers. Diese wurden durch die D&V Immobilien GmbH & Co. KG nicht...
Anbieter der Immobilie

Online-ID: 2n4ul5f
Referenznummer: 501
Finde Angebote wie dieses
Hier geht es zu unserem Impressum, den Allgemeinen Geschäftsbedingungen, den Hinweisen zum Datenschutz und nutzungsbasierter Online-Werbung.