

ENDERS IMMOBILIEN Verkauf & Vermietung BONN - RHEIN - SIEG
Herr Volker Enders
0 2 ···
Nr. anzeigenPreise & Kosten
Provision für Käufer
3,57 % vom Kaufpreis inkl. der ges. MwSt. unbeschadet einer Courtagezahlung der Verkäuferseite.
Lage
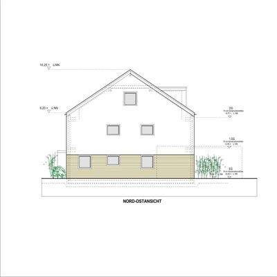
Die zu veräußernden schönen Doppelhaushälften liegt in einer zentralen Wohnlage in 53757 Sankt Augustin - Hangelar.
Die Anbindung nach Sankt Augustin und Bonn ist ideal.
Hangelar ist ein Stadtbezirk der Stadt Sankt Augustin im nordrhein-westfälischen Rhein-Sieg-Kreis zwischen dem Zentrum Sankt Augustins und...
Das Haus
Kategorie
Doppelhaushälfte
Energie & Heizung
Warum sehe ich diese Anzeige? – Du siehst diese Anzeige basierend auf Ihrer Navigation auf unserer Website und den Suchkriterien, die du verwendet hast.
Weitere Energiedaten
Heizungsart
Fußbodenheizung, Luft-/Wasser-Wärmepumpe
Details
Objektbeschreibung
Zwischen Bonn-Beuel und Siegburg entstehen in SANKT AUGUSTIN HANGELAR ... 4 x NEUBAU DOPPELHAUSHÄLFTEN ...
Der Baubeginn ist erfolgt ! Die Grundstücke sind bereits vermessen !
. Es entstehen in SANKT AUGUSTIN HANGELAR ... 4 x NEUBAU DOPPELHAUSHÄLFTEN ...
ab 4 9 9. 0 0 0 , - - E u r o
......
Ausstattung
- Massivbauweise
- Kunsstofffenster mit Isolierverglasung (Dreifachverglasung)
- Heizung: Luft- Wärmepumpe
- Fussbodenheizung
- Badezimmer: hell und modern gefliest (Wanne und Dusche möglich).
- weitere Ausstattungen auf Anfrage
+++ fordern Sie die Baubeschreibung an +++
Preisinformation
1 Garagenstellplatz
Weitere Informationen
Sonstiges
Objektinformationen:
weitere Objektinformationen und Bilder sowie den Objektstatus sehen Sie dann unter:
www.enders-immobilien.de/Ebevkcfbh
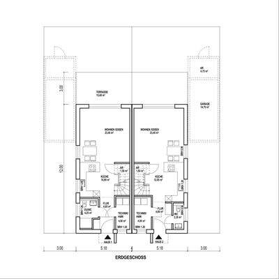
Aufteilung:
Informationen hinsichtlich der Angaben zur Aufteilung -Grundrisse- erscheinen in kürze.
Verkauf:
ein Verkauf ist...
Anbieter der Immobilie
ENDERS IMMOBILIEN Verkauf & Vermietung BONN - RHEIN - SIEG
Alte Heerstrasse 39, 53757 Sankt Augustin

Online-ID: 2n4sy5n
Referenznummer: Ebevkcfbh
Finde Angebote wie dieses
Hier geht es zu unserem Impressum, den Allgemeinen Geschäftsbedingungen, den Hinweisen zum Datenschutz und nutzungsbasierter Online-Werbung.