
Heiner Immobilien und Grundbesitz GmbH
Herr Kai Sudheimer
004 ···
Nr. anzeigenPreise & Kosten
Provision für Käufer
3,57%
Lage
Die Immobilie befindet sich in ruhiger und naturnaher Lage im Modautaler Ortsteil Brandau, einer beliebten Wohngemeinde im Landkreis Darmstadt-Dieburg. Brandau liegt eingebettet in die sanften Hügel des vorderen Odenwaldes und ist geprägt von einer gewachsenen Dorfgemeinschaft, viel Grün und einem hohen Erholungswert. Die...
Das Haus
Kategorie
Einfamilienhaus
Baujahr
1974
Bezug
Ab sofort
Energie & Heizung
Warum sehe ich diese Anzeige? – Du siehst diese Anzeige basierend auf Ihrer Navigation auf unserer Website und den Suchkriterien, die du verwendet hast.
Energieausweistyp
Bedarfsausweis
Gebäudetyp
Wohngebäude
Baujahr laut Energieausweis
1973
Wesentliche Energieträger
OEL
Gültigkeit
bis 01.02.2036
Effizienzklasse
H
Endenergiebedarf
278,10 kWh/(m²·a)
Weitere Energiedaten
Energieträger
Öl
Details
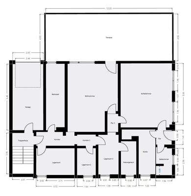
Objektbeschreibung
Dieses freistehende Einfamilienhaus mit großzügiger Einliegerwohnung wurde im Jahr 1974 erbaut und überzeugt durch seine naturnahe Lage, ein weitläufiges Grundstück sowie eine durchdachte Raumaufteilung. Auf einer Gesamtwohnfläche von rund 236 m² bietet die Immobilie vielfältige Nutzungsmöglichkeiten für Familien...
Preisinformation
2 Garagenstellplätze
Weitere Informationen
Stichworte
Nutzfläche: 64,00 m², Anzahl der Schlafzimmer: 5, Anzahl der Badezimmer: 2, Anzahl der separaten WCs: 1, Anzahl Balkone: 1, Anzahl Terrassen: 1, 2 Etagen
Sonstiges/Wohnen: Einliegerwohnung
Anbieter der Immobilie
Heiner Immobilien und Grundbesitz GmbH
Zieglerstraße 2, 64319 Pfungstadt
Online-ID: 2n4st5d
Referenznummer: Modautal_Brandau_EFH
Finde Angebote wie dieses
Hier geht es zu unserem Impressum, den Allgemeinen Geschäftsbedingungen, den Hinweisen zum Datenschutz und nutzungsbasierter Online-Werbung.