
Immobilienhaus Wagner GmbH
Herr Eric Lucyga
015 ···
Nr. anzeigenPreise & Kosten
Provision für Käufer
3,57 % inkl. gesetzlicher MwSt..
Die Angaben zum Objekt stammen vom Verkäufer. Für die Richtigkeit und Vollständigkeit wird keine Haftung übernommen. Weitere Informationen siehe Provisionshinweis.
Lage
Das Einfamilienhaus liegt in ruhiger und gewachsener Wohnlage im Ortsteil Vogelsang der Gemeinde Neuburg. Die Umgebung ist geprägt von Einfamilienhäusern, weiten Grünflächen und einer angenehmen, ländlichen Atmosphäre - ideal für alle, die naturnah und entspannt Wohnen möchten.
Die Nähe zur Hansestadt Wismar ermöglicht...
Das Haus
Kategorie
Einfamilienhaus
Baujahr
1955
Bezug
nach Absprache
Energie & Heizung
Warum sehe ich diese Anzeige? – Du siehst diese Anzeige basierend auf Ihrer Navigation auf unserer Website und den Suchkriterien, die du verwendet hast.
Energieausweistyp
Verbrauchsausweis
Gebäudetyp
Wohngebäude
Wesentliche Energieträger
Strom
Gültigkeit
14.09.2021 bis 14.09.2031
Effizienzklasse
A
Endenergieverbrauch
35,60 kWh/(m²·a)
Weitere Energiedaten
Energieträger
Elektro
Heizungsart
offener Kamin
Details
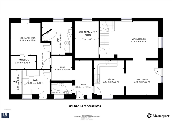
Objektbeschreibung
Das ca. 1955 in Massivbauweise errichtete Landhaus mit Einliegerwohnung befindet sich in einem gepflegten Allgemeinzustand und bietet auf mehreren Ebenen ein großzügiges Wohnkonzept für Familien, Paare oder Mehrgenerationenhaushalte. Die im Jahr 2009 kernsanierte Immobilie überzeugt mit ca. 285 m² Wohnfläche sowie einem ca...
Ausstattung
. Massives Mauerwerk mit ca. 60 cm Stärke
. Kernsanierung / Neuaufbau im Jahr 2009
. Gepflegter Allgemeinzustand
. Großer Wohnbereich mit Einbauküche, Esszimmer, Schlafzimmer, Arbeitszimmer, Badezimmer & HWR im EG
. Offener Galeriewohnraum mit toller Aussicht im Dachgeschoss
. Vollbad mit ebenerdige Dusche...
Preisinformation
5 Stellplätze
Weitere Informationen
Provisionshinweis
3,57 % inkl. gesetzlicher MwSt..
Die Angaben zum Objekt stammen vom Verkäufer. Für die Richtigkeit und Vollständigkeit wird keine Haftung übernommen. Der Käufer zahlt im Erfolgsfall an die Firma Immobilienhaus Wagner GmbH eine Käufer-Maklerprovision in Höhe von 3,57 % inkl. gesetzlicher MwSt.. Die...
Anbieter der Immobilie
Online-ID: 2n4rb5l
Referenznummer: 3097
Finde Angebote wie dieses
Hier geht es zu unserem Impressum, den Allgemeinen Geschäftsbedingungen, den Hinweisen zum Datenschutz und nutzungsbasierter Online-Werbung.