

Lan Immobilien
Herr Manuel Lan
+49 ···
Nr. anzeigenPreise & Kosten
Provision für Käufer
8.889,30EUR
3,57 % Käuferprovision inkl. MwSt., verdient und fällig mit Beurkundung des notariellen Kaufvertrages. Der Immobilienmakler hat einen provisionspflichtigen Maklervertrag mit dem Verkäufer in gleicher Höhe abgeschlossen.
Lage
Die Immobilie liegt in ruhiger, grüner Wohnlage im beliebten Berliner Ortsteil Niederschönhausen (Pankow). Die Charlottenstraße bietet eine angenehme Nachbarschaft mit gepflegten Alt- und Neubauten - ideal für Familien, Paare und Ruhesuchende.
Einkaufsmöglichkeiten, Cafés, Schulen, Kitas und Ärzte sind fußläufig erreichbar...
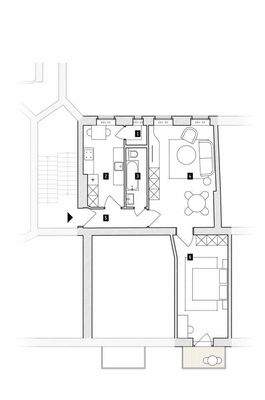
Die Wohnung
Wohnungslage
1. Geschoss
Bezug
ab sofort
Derzeitige Nutzung
frei
Wohnanlage
Energie & Heizung
Warum sehe ich diese Anzeige? – Du siehst diese Anzeige basierend auf Ihrer Navigation auf unserer Website und den Suchkriterien, die du verwendet hast.
Energieausweistyp
Verbrauchsausweis
Gebäudetyp
Wohngebäude
Baujahr laut Energieausweis
1900
Wesentliche Energieträger
Gaszentralheizung
Gültigkeit
05.03.2021 bis 04.03.2031
Effizienzklasse
D
Endenergieverbrauch
105,00 kWh/(m²·a) - Warmwasser enthalten
Weitere Energiedaten
Energieträger
Gas
Heizungsart
Zentralheizung
Details
Objektbeschreibung
Das gepflegte Mehrfamilienhaus in markanter Ecklage ist ein modernisierter Altbau aus dem Jahr 1900. Die angebotene Wohneinheit befindet sich auf dem 1. Obergeschoss.
Ausstattung
Diese charmante Wohnung überzeugt mit zwei gut geschnittenen Zimmern und einem großzügigen Eingangsbereich, der ein angenehmes Raumgefühl vermittelt. Ein Zimmer ist derzeit als praktisches Durchgangszimmer gestaltet und eröffnet vielfältige Nutzungsmöglichkeiten.
Mit überschaubarem Aufwand besteht die Möglichkeit, den...
Weitere Informationen
Sonstiges
Für ein ausführliches Exposé füllen Sie bitte das Kontaktformular vollständig aus.
Lan Immobilien
Marburger Str.14
D-10789 Berlin
Office.: +49 30 28 60 78 40
Web: www.lan-immobilien.de
Alle Angaben sind ohne Gewähr und basieren ausschließlich auf Informationen, die uns von...
Dokumente
Anbieter der Immobilie
Lan Immobilien
Marburgerstr. 14, 10789 Berlin

Online-ID: 2n4q65x
Referenznummer: 1855
Finde Angebote wie dieses
Hier geht es zu unserem Impressum, den Allgemeinen Geschäftsbedingungen, den Hinweisen zum Datenschutz und nutzungsbasierter Online-Werbung.