

Volksbank@Home Immobilien und Wohnen in der Region GmbH
Herr Martin Futter
004 ···
Nr. anzeigenPreise & Kosten
Provision für Käufer
provisionsfrei
Lage
Die Gemeinde Nehren liegt sehr schön am Südrand des Landkreises Tübingen und ist rund 10 km von der Universitätsstadt Tübingen entfernt. Fachwerkhäuser, Scheunen, idyllische Hinterhöfe prägen den Ortskern, welcher denkmalgeschützt ist. Nehren gilt seit vielen Jahren als begehrter Wohnort und überzeugt durch seine gute...
Die Wohnung
Wohnungslage
Erdgeschoss
Wohnanlage
Details
Objektbeschreibung
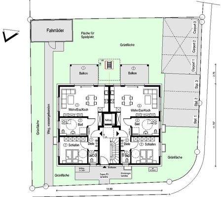
In ruhiger Lage unweit der Ortsmitte von Nehren entsteht ein kleineres Mehrfamilienwohnhaus mit nur 4 Wohnungen, mit jeweils 2 Zimmern. Die Wohnungen sind gut geschnitten und wirken durch die Ausrichtung nach drei Seiten hell und freundlich.
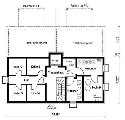
Alle Wohnungen sind barrierefrei erreichbar, die Wohnungen im Obergeschoss...
Ausstattung
Alle Wohnungen erhalten eine gute und hochwertige Ausstattung, wie z. B.:
- Luft-Wasser-Wärmepumpe mit Fußbodenheizung
- Dreifach-verglaste Fenster mit elektrischen Rollläden
- Schöne Sanitäreinrichtung mit bodenebenen Duschen
- Umfangreiche Elektroinstallation, Tür-/Sprechanlage mit Kamera und...
Weitere Informationen
Stichworte
Anzahl der Schlafzimmer: 1, Anzahl der Badezimmer: 1, Anzahl der separaten WCs: 1, Anzahl Balkone: 1, 3 Etagen
Anbieter der Immobilie

Volksbank@Home Immobilien und Wohnen in der Region GmbH
Hindenburgstr. 14-18, 71083 Herrenberg

Online-ID: 2n4q55z
Referenznummer: 7121
Finde Angebote wie dieses
Hier geht es zu unserem Impressum, den Allgemeinen Geschäftsbedingungen, den Hinweisen zum Datenschutz und nutzungsbasierter Online-Werbung.