

Dr. Schmidt-Bovendeert Immobilien OHG
Frau Melanie Schmidt
026 ···
Nr. anzeigenPreise & Kosten
Provision für Käufer
3,57 % inkl. MwSt.
Lage
Ihr neues Zuhause befindet sich in 56479 Bretthausen, eine Ortsgemeinde im Westerwaldkreis in Rheinland-Pfalz. Sie gehört der Verbandsgemeinde Rennerod an. Die Stadt Rennerod verfügt über eine sehr gute Infrastruktur mit zahlreichen Einkaufsmöglichkeiten des täglichen Bedarfs, Supermärkten, Ärzten (Allgemeinmedizinern und...
Das Haus
Kategorie
Einfamilienhaus
Baujahr
1964
Bezug
sofort
Energie & Heizung
Warum sehe ich diese Anzeige? – Du siehst diese Anzeige basierend auf Ihrer Navigation auf unserer Website und den Suchkriterien, die du verwendet hast.
Energieausweistyp
Bedarfsausweis
Gebäudetyp
Wohngebäude
Baujahr laut Energieausweis
1964
Wesentliche Energieträger
OEL
Gültigkeit
bis 15.02.2036
Effizienzklasse
G
Endenergiebedarf
248,10 kWh/(m²·a)
Weitere Energiedaten
Haustyp
Massivhaus
Energieträger
Öl
Heizungsart
offener Kamin, Zentralheizung
Details
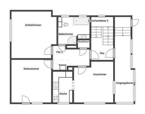
Objektbeschreibung
Willkommen in Ihrem neuen Zuhause in Bretthausen! Dieses gepflegte Einfamilienhaus mit Einliegerwohnung bietet Ihnen und Ihrer Familie ein idyllisches Wohnambiente in ländlicher, ruhiger Lage. Erbaut im Jahr 1964 in massiver Bauweise, verspricht das Haus Langlebigkeit und Wärme.
Auf einem großzügigen Grundstück von ca...
Ausstattung
Dacheindeckung: Kunstschiefer
Fassadenverkleidung: Kunstschiefer
Fenster: zweifach verglaste Holzfenster mit Rollläden (2001 teilweise erneuert)
Heizung: Ölzentralheizung von Sparmatic (1989), Brenner Weishaupt (2023),
Warmwasserspeicher: 150 Liter
Öltankbehälter aus Kunststoff - 2 x 1500 Liter
Badezimmer...
Weitere Informationen
Sonstiges
Die in unserem Exposé enthaltenen Aussagen basieren ausschließlich auf Informationen, die uns vom Verkäufer zur Verfügung gestellt wurden. Wir übernehmen daher keine Gewähr für die Vollständigkeit und Richtigkeit der Angaben. Das Immobilienangebot ist freibleibend. Irrtum und Zwischenverkauf bleiben...
Anbieter der Immobilie

Online-ID: 2n4ne5q
Referenznummer: 4690
Finde Angebote wie dieses
Hier geht es zu unserem Impressum, den Allgemeinen Geschäftsbedingungen, den Hinweisen zum Datenschutz und nutzungsbasierter Online-Werbung.