

Daxeder Immobilien
Herr Sebastian Daxeder
080 ···
Nr. anzeigenPreise & Kosten
Provision für Käufer
provisionsfrei
Lage
Diese Immobilie liegt in Kaps, in ruhigen Ortsteil der Gemeinde Schechen.
Hier genießen Sie zum einen eine wunderbare Ruhe der Natur, zum anderen sind Sie innerhalb weniger Minuten im Ortskern Schechen.
In nächster Nähe befinden sich der Erlensee und der Waldsee, welche im Sommer zum Baden und Entspannen...
Das Haus
Kategorie
Doppelhaushälfte
Baujahr
2026
Bezug
sofort
Energie & Heizung
Warum sehe ich diese Anzeige? – Du siehst diese Anzeige basierend auf Ihrer Navigation auf unserer Website und den Suchkriterien, die du verwendet hast.
Energieausweistyp
Bedarfsausweis
Gebäudetyp
Wohngebäude
Baujahr laut Energieausweis
2024
Wesentliche Energieträger
Luftwärmepumpe
Gültigkeit
20.07.2022 bis 22.08.2034
Effizienzklasse
A+
Endenergiebedarf
8,50 kWh/(m²·a)
Weitere Energiedaten
Heizungsart
Fußbodenheizung, Luft-/Wasser-Wärmepumpe
Details
Objektbeschreibung
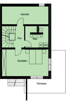
Bei dieser attraktiven Doppelhaushälfte stehen Ihnen insgesamt 3 Etagen zur Verfügung.
Im Erdgeschoss befindet sich die Eingangsdiele, ein kleines Duschbad mit Gäste-WC, der Wohn-und Kochbereich und ein Zimmer, das entweder als Gästezimmer oder auch als Homeoffice opitmal genutzt werden kann.
Im Obergeschoss des...
Ausstattung
Das Haus wurde in massiver Ziegelbauweise errichtet mit qualitativ hochwertigen natürlichen Baustoffen.
Beheizt wird mit einer eigenen Wärmepumpe über eine Fussbodenheizung.
Die Bäder sind mit schönen warmen Fliesen, bodengleichen Duschen und einer zeitlosen Sanitäreinrichtung ausgestattet.
Sämtliche weitere Böden...
Weitere Informationen
Wir freuen uns über Ihre Nachricht und vereinbaren gerne eine Besichtigung mit Ihnen !
Anbieter der Immobilie
Daxeder Immobilien
Carl-Jordan-Str. 9, 83059 Kolbermoor

Online-ID: 2n4lq5d
Finde Angebote wie dieses
Hier geht es zu unserem Impressum, den Allgemeinen Geschäftsbedingungen, den Hinweisen zum Datenschutz und nutzungsbasierter Online-Werbung.